
Das Objekt wurde bereits verkauft? Kein Problem! Schauen Sie sich hier unsere aktuellen Kaufobjekte an.
Das hier zum Kauf stehende Haus liegt in einem ruhigen, bevorzugten Wohngebiet in Diedorf mit Einkaufsmöglichkeiten in laufnähe.
Das Architektenhaus wurde 2014 aufwendig und sehr gut ausgestattet erbaut, es ist in einem gepflegten Zustand und ab Dezember 2021 beziehbar.
EG:
Eingang, offenes Treppenhaus, Gäste WC, großer Wohnraum mit Wohnzimmer, Esszimmer, offener Einbauküche mit Theke (optional), Terrassentüre auf die große, überdachte Terrasse, Handgefertigter Kachelofen mit Warmasserunterstützung und großer Glastüre; Durchgang möglich zur ersten Einliegerwohnung die momentan nur von Außen mit separater Eingangstüre erschlossen ist. Es gibt ein Abgetrenntes Bad mit Wohnraum und Küchenzeile (optional), elektrische Schließanlage, Südbalkon.
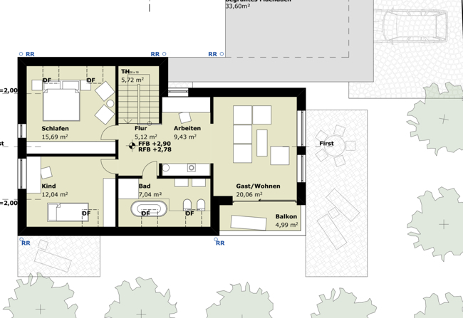
OG:
große helle Galerie (bis in den Dachspitz offen), abgetrenntes Zimmer mit Südbalkon, großes, modernes Bad mit Wanne (abdeckbar), Dusche mit Glaswand, Waschbecken, WC, zwei große Dachflächenfenster; Schlafzimmer, Zimmer mit innenliegender Holztreppe in den Dachspitz ideal als Kinderzimmer;
UG:
Technikraum, Sauna mit Dusche, Kellerraum, möglich Durchgang in die zweite Einliegerwohnung:
Die Wohnung ist ebenfalls über eine eigene Eingangstüre von Außen (Alpinum) erschlossen, Wohnraum mit Schlafnische, Küchenzeile, separates Bad mit Dusche, WC, Waschbecken, Waschmaschinenanschluss.
Art: Bedarfsausweis
Gültig bis: 22.10.2021
Endenergieverbrauch: 0.00 kWh/(m²*a)
Baujahr lt. Energieausweis: 2014
Wesentlicher Energieträger: Gas
Diedorf, bietet nahe zu alle Einkaufsmöglichkeiten, Schulen, Kindergarten sowie Ärzte und die meisten sogar fußläufig.
- 2 x Einliegerwohnung mit je separatem Eingang die 2 Wohnungen besitzen dezentrale Lüftungsanlage (Inventer)
- großer Wohn-Ess-Küchenbereich
- Einbauküche
- Handgefertigter Kachelofen (Grundofen) mit Wamrwasserunterstützung
- OG Eiche Parkettböden
- Solaranlage
- Regenwasser-Zisterne
- zentrale Lüftungsanlage mit Sole-Erdwärmetauscher (Kühlung im Sommer Wärme im Winter)
- Wärmerückgewinnung
- Sauna mit Dusche
- Alpinum
- Garage
- zwei Stellplätze
- Überdachter Eingang
- Überdachte Ostterrasse
- zweite Südterrasse
- Südbalkon
Zahlbare Käuferprovision (Maklerkosten) 3,00 % zzgl. gültige MwSt. auf den beurkundeten Kaufpreis. Fällig bei Notartermin.
Wir weisen darauf hin, dass wir für den jeweils anderen Vertragspartner ebenfalls für 3,00 % zzgl. gültige MwSt. entgeltlich tätig sind.
Als Immobiliendienstleister sind wir gesetzlich dazu verpflichtet die Identitäten unsere Kunden festzustellen. § 2 Abs. 1 Nr. 10 Geldwäschegesetz (GwG).
Für die Richtigkeit unserer Angaben übernehmen wir keine Haftung. Wir versichern jedoch, dieses Angebot nach bestem Wissen und den uns übermittelten Angaben erstellt zu haben. Der Grundrissplan ist zur Maßentnahme nicht geeignet.
Bei einer konkreten Kaufabsicht ist deswegen ein gültiger Personalausweis auf Verlangen vorzulegen.
Herr Gregor Grimm:
Grimmobilien
Franz-Beck-Straße 21
86551 Aichach
Tel.: 08251-888282
Email: info@grimmobilien.net
Homepage: www.grimmobilien.net