Erfoglreich verkauft

Das Objekt wurde bereits verkauft? Kein Problem! Schauen Sie sich hier unsere aktuellen Kaufobjekte an.

Hier aktuelle Kaufangebote ansehen!
NutzungsartWohnen
VermarktungsartKauf
ObjektartHaus
ObjekttypEinfamilienhaus
PLZ86497
OrtHorgau / Horgauergreut
LandDeutschland
Nutzfläche90.00 m²
Grundstücksgröße801.00 m²
Wohnfläche190.00 m²
Anzahl Zimmer10.00
Anzahl Schlafzimmer5.00
Anzahl Badezimmer2.00
Anzahl sep. WC2.00
Befeuerung Öl
Heizungsart Zentralheizung
Etagenzahl2
Kabel Sat TVJa
externe ObjnrSM835
StatusArchiviert
Betreuer
erstellt am28.09.2016
Objektbeschreibung:

Das 1979 erbaute Einfamilienhaus ist voll unterkellert.
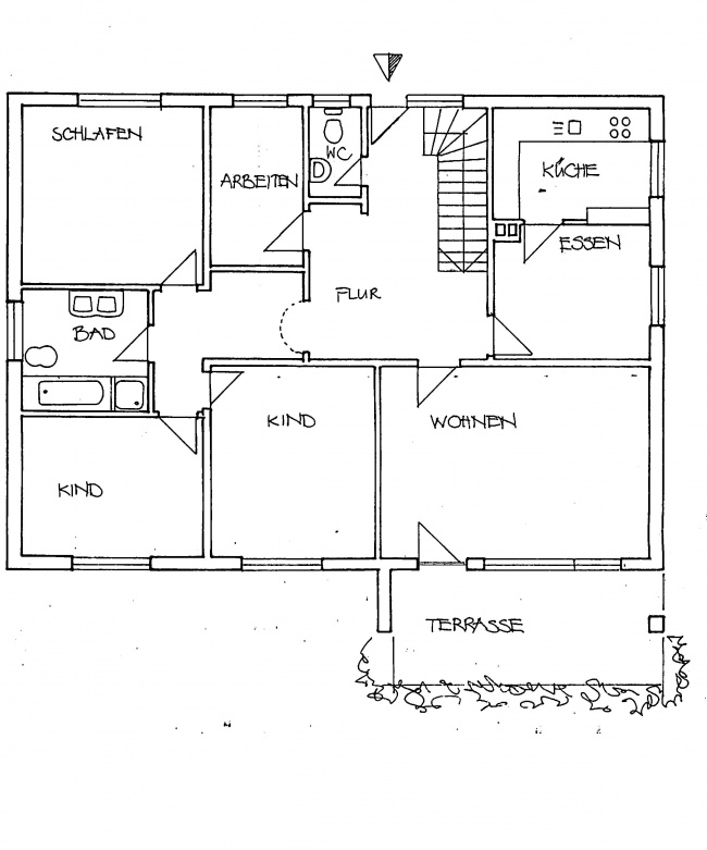
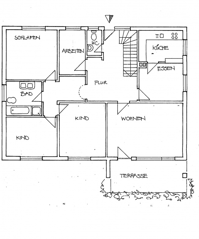
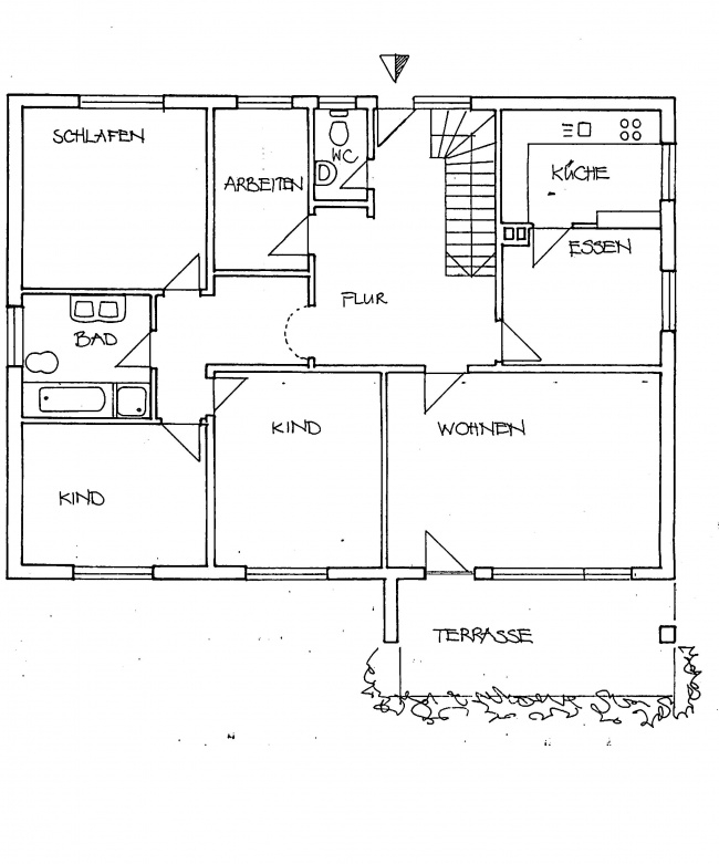
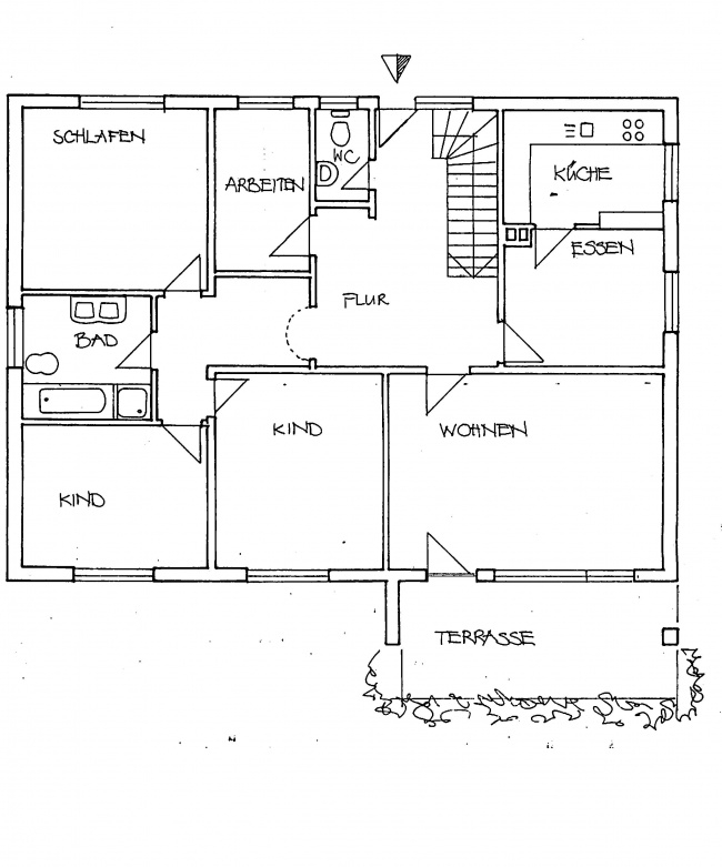
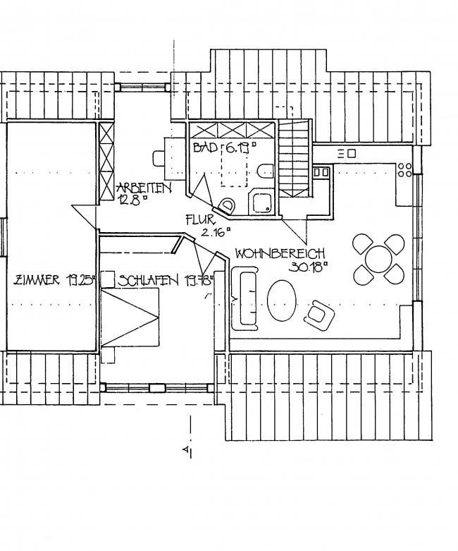
Erdgeschoss: Flur; Büro/ Garderobe; Esszimmer mit Durchgang zur Küche; großes Wohnzimmer mit Terrassentüre; zwei Kinderzimmer, Elternschlafzimmer; Bad mit Wanne, Dusche, zwei Waschbecken und Fenster;

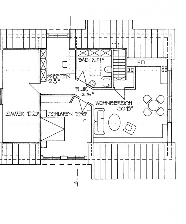
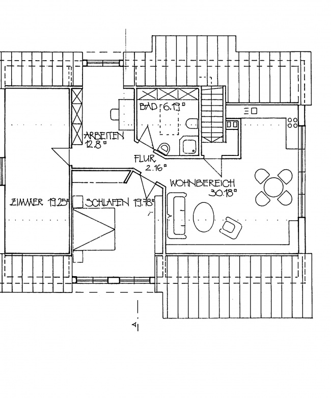
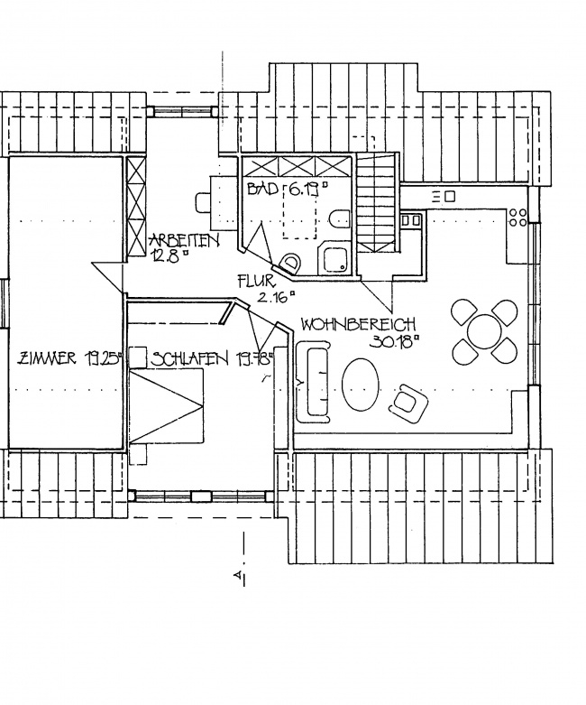
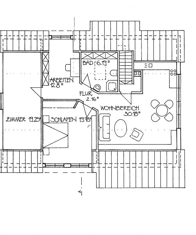
Dachgeschoss: Ausbau 1994, großes, helles Studio mit Küchenanschlüsse; Badezimmer mit Dusche, WC und Dachflächenfenster; Kinderzimmer; Elternschlafzimmer; Ankleide;

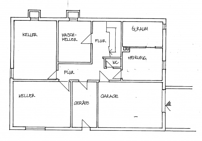
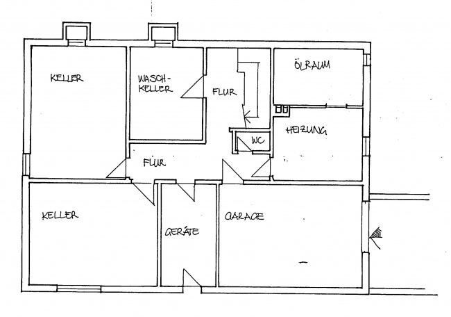
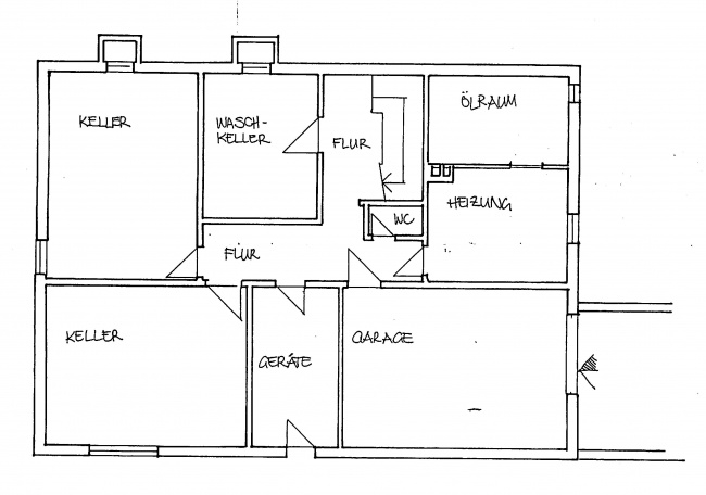
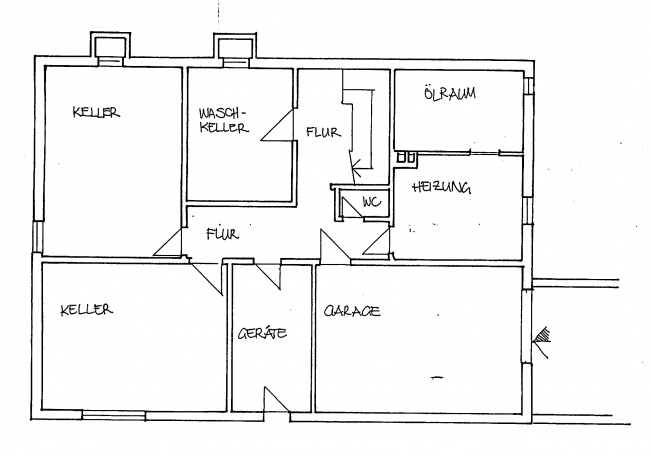
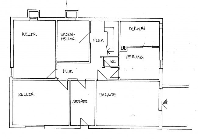
Keller:
Waschküche mit Sauna; Werkstattraum, Gästezimmer/ Büro mit Tageslicht; Heizraum; WC; Garage im Keller mit direktem Zugang

Energieausweis:

Art: Verbrauchsausweis
Gültig bis: 03.10.2026
Endenergieverbrauch: 76.40 kWh/(m²*a)
Baujahr lt. Energieausweis: 1980
Wesentlicher Energieträger: Öl

Lage:

Das Haus liegt an einem leichten Hang in sehr ruhigerer Wohnlage, nur wenige Minuten bis zur Autobahn A8.

Ausstattung:

Das Einfamilienhaus ist in einem gepflegten Zustand.
Das Dachgeschoss wurde 1994 ausgebaut und könnte auch als Einliegerwohnung genutzt werden.
Der durchdachte Grundriss teilt das Erdgeschoss in einen Wohnbereich und privaten Schlafbereich. Teilweise Parkettböden.
Im Keller gibt es eine Sauna und ein größeres Zimmer mit Tageslicht. Das Eckgrundstück ist schön eingewachsen.

Sonstiges:

Das Haus ist frei und kann sofort übergeben werden.

Herr Gregor Grimm:
Grimmobilien

Franz-Beck-Straße 21
86551 Aichach

Tel.: 08251-888282