Erfoglreich verkauft

Das Objekt wurde bereits verkauft? Kein Problem! Schauen Sie sich hier unsere aktuellen Kaufobjekte an.

Hier aktuelle Kaufangebote ansehen!
NutzungsartWohnen
VermarktungsartKauf
ObjektartWohnung
ObjekttypDachgeschoss
PLZ86477
OrtAdelsried
LandDeutschland
Nutzfläche30.00 m²
Wohnfläche125.00 m²
Anzahl Zimmer5.00
Anzahl Schlafzimmer3.00
Anzahl Badezimmer1.00
Anzahl sep. WC1.00
Balkon/Terrasse20 m²
Befeuerung Öl, Solar
Heizungsart Zentralheizung
Etagenzahl2
FahrstuhlKein Fahrstuhl
Kabel Sat TVJa
externe ObjnrRU438
StatusArchiviert
Betreuer
erstellt am19.05.2015
Objektbeschreibung:

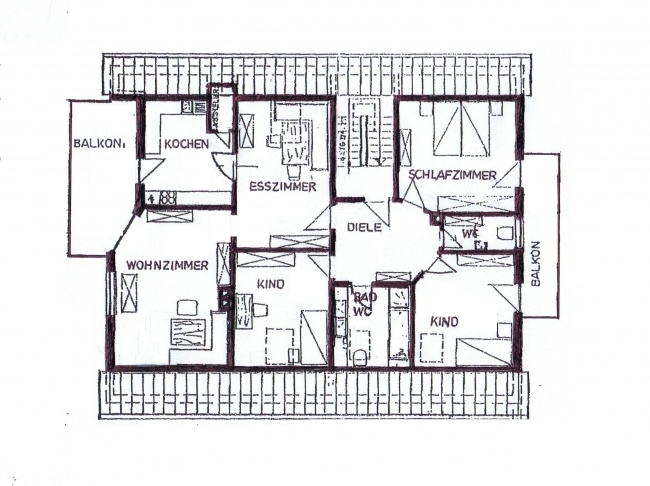
Die Wohnung ist gut ausgestattet und gepflegt. Es gibt drei Schlafzimmer, Esszimmer, Wohnzimmer mit Holzofen, Bad mit Doppelwaschbecken, Wanne, Dusche und Fenster. Küche (optional mit Einbauküche) mit Speis und Balkontüre. Die Zimmer sind mit Parkettböden ausgestattet. Es gibt zwei Balkone, einen auf die Ostseite und einen großen auf die Westseite mit freiem Blick auf Felder und Wiesen.

Energieausweis:

Art: Bedarfsausweis
Gültig bis: 24.4.2023
Endenergieverbrauch: 0.00 kWh/(m²*a)
Baujahr lt. Energieausweis: 0
Wesentlicher Energieträger: Öl

Lage:

Die Fünfzimmer- Dachgeschosswohnung befindet sich in einem Fünffamilienhaus am Ortsrand von Adelsried. Sehr ruhig gelegen aber nur drei Minuten bis zur Autobahn A8.

Ausstattung:
  • Wohnzimmer mit Holzofen
  • Garage und Außenstellplatz
  • Großer Kellerraum mit Fenster
  • Waschkeller
  • Eigener Garten knapp 100 m² mit Gartenhütte
  • Solar-Unterstützung
Sonstiges:

Herr Gregor Grimm:
Grimmobilien

Franz-Beck-Straße 21
86551 Aichach

Tel.: 08251-888282