
Das Objekt wurde bereits verkauft? Kein Problem! Schauen Sie sich hier unsere aktuellen Kaufobjekte an.
Wir bieten hier eine sehr helle, geräumige 3 Zimmer-Wohnküchen-Wohnung in ruhiger Lage mitten in Schwabing zum Kaufen an. Die Wohnung befindet sich im zweiten Stock eines wunderschönen, denkmalgeschütztem Altstadthaus.
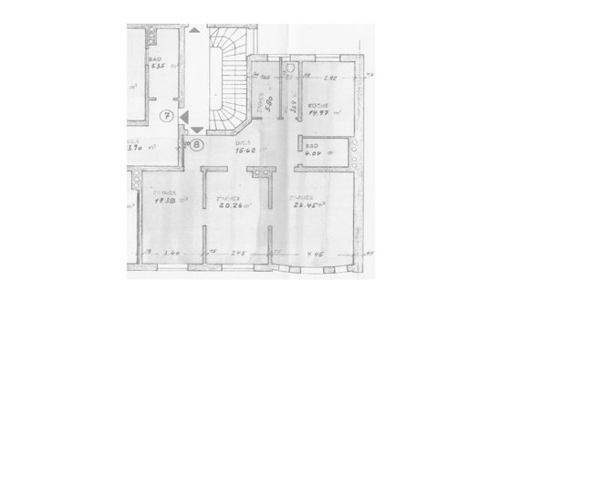
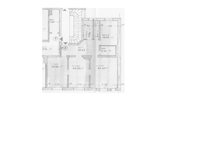
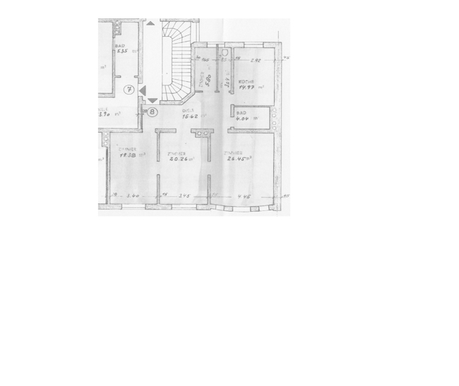
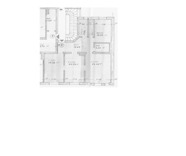
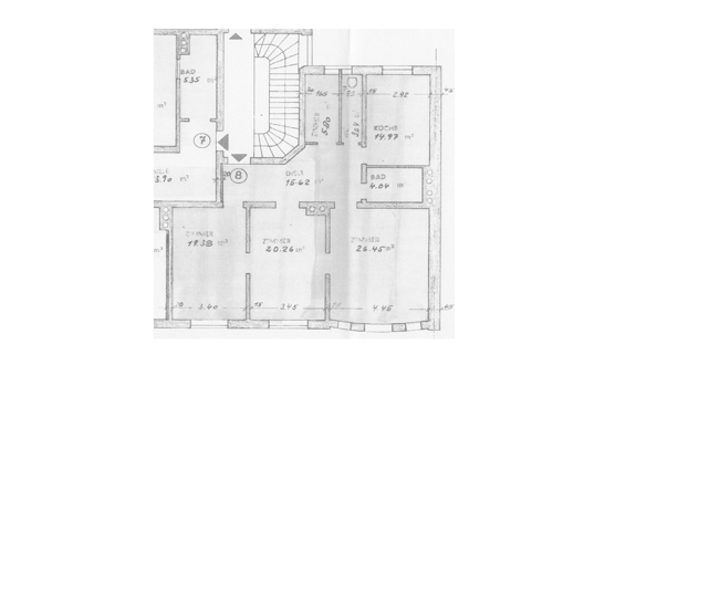
Aufteilung der Wohnung:
Windfang mit Einbauschränken, erstes Zimmer mit großem, isolierverglasten, weißen Fenster, Eiche Fischgrätparkett sowie Stuck.
Großer-Wohn-Flur; zweites Zimmer ebenfalls mit großem, isolierverglasten, weißen Fenster, Eiche Fischgrätparkett sowie Stuck.
Großes Wohnzimmer mit drei isolierverglasten, weißen Fenster, Eiche Fischgrätparkett sowie abgehängter Decke.
Saniertes Bad mit, sep. WC, Waschbecken, Dusche mit Duschkabine, Wanne, zwei Fenster;
Speise Kammer mit Regalen, Heizung und viel Stauraum.
Wohnküche mit Einbauküche, hier gab es in der Vergangenheit einen Außenbalkon in den ruhigen Innenhof der wegen statischen Problemen vorsichtshalber demontiert wurde. Möglicherweise könnte hier wieder ein Balkon angebaut werden.
Es gibt noch einen größeren Kellerraum der Zur Wohnung gehört.
Art: Bedarfsausweis
Gültig bis: 16.8.2021
Endenergieverbrauch: 0.00 kWh/(m²*a)
Baujahr lt. Energieausweis: 2003
Wesentlicher Energieträger: Gas
Die Wohnung liegt im Herzen von Schwabing in zentraler, ruhigen Lage!
Die genaue Adresse sowie weitere Infos erhalten Sie gerne nach Ihrer Anfrage per E-Mail sowie der üblichen Widerrufsbestätigungen. Wir freuen uns auf Ihre E-Mailanfrage!
- Zimmer mit original Eiche Fischgrätparkett
- großer Wohnflur
- Bad mit 2 Fenster WC (abtrennbar) Wanne, Dusche
- Große Speisekammer
- Balkon evt. möglich
- helle Räume
- Wohnküche mit Einbauküche
- großer Kellerraum
- Einbauschränke im Flur
- Teilweise original Stuck an den Decken
- repräsentativer Eingangsbereich
- großer Kellerraum
! Es gibt keinen Aufzug und keinen KFZ-Stellplatz!
Zahlbare Käuferprovision (Maklerkosten) 2,50 % zzgl. gültige MwSt. auf den beurkundeten Kaufpreis. Fällig bei Notartermin.
Wir weisen darauf hin, dass wir für den jeweils anderen Vertragspartner ebenfalls für 2,50 % zzgl. gültige MwSt. entgeltlich tätig sind.
Als Immobiliendienstleister sind wir gesetzlich dazu verpflichtet die Identitäten unsere Kunden festzustellen. § 2 Abs. 1 Nr. 10 Geldwäschegesetz (GwG).
Für die Richtigkeit unserer Angaben übernehmen wir keine Haftung. Wir versichern jedoch, dieses Angebot nach bestem Wissen und den uns übermittelten Angaben erstellt zu haben. Der Grundrissplan ist zur Maßentnahme nicht geeignet.
Bei einer konkreten Kaufabsicht ist deswegen ein gültiger Personalausweis auf Verlangen vorzulegen.
Herr Gregor Grimm:
Grimmobilien
Franz-Beck-Straße 21
86551 Aichach
Tel.: 08251-888282
Email: info@grimmobilien.net
Homepage: www.grimmobilien.net