Erfoglreich verkauft

Das Objekt wurde bereits verkauft? Kein Problem! Schauen Sie sich hier unsere aktuellen Kaufobjekte an.

Hier aktuelle Kaufangebote ansehen!
NutzungsartWohnen
VermarktungsartKauf
ObjektartWohnung
ObjekttypDachgeschoss
PLZ86438
OrtKissing
LandDeutschland
Nutzfläche12.00 m²
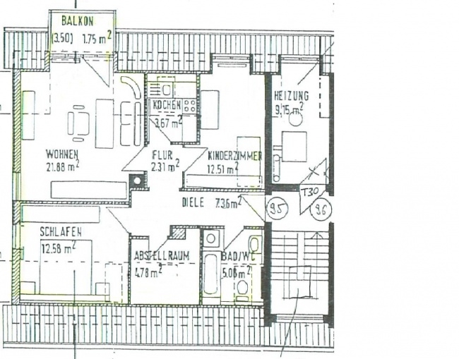
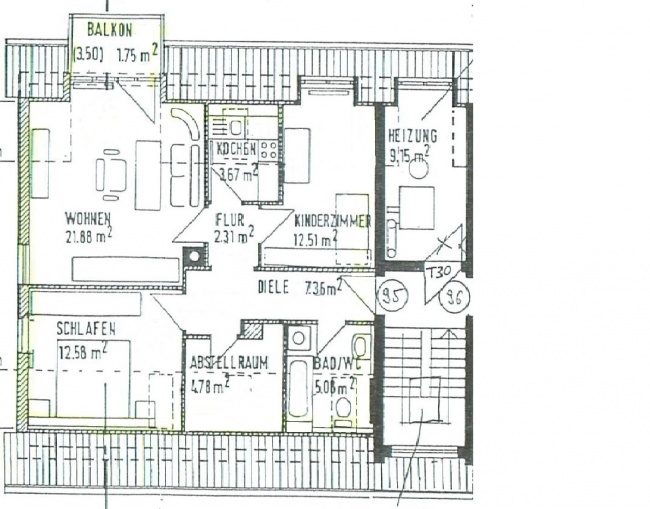
Wohnfläche72.00 m²
Anzahl Zimmer3.00
Anzahl Schlafzimmer2.00
Anzahl Badezimmer1.00
Balkon/Terrasse6 m²
Befeuerung Gas
Heizungsart Zentralheizung
Etagenzahl4
FahrstuhlKein Fahrstuhl
Kabel Sat TVJa
externe ObjnrJC514
StatusArchiviert
Betreuer
erstellt am02.04.2015
Objektbeschreibung:

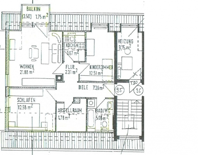
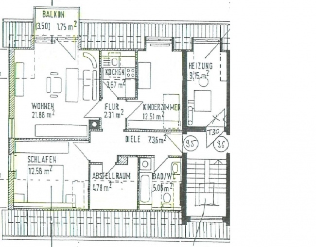
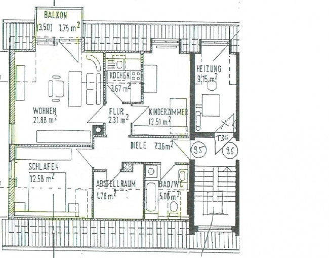
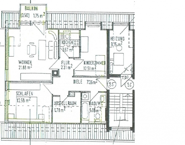
Wohnung Dachgeschoss, geringe Nebenkosten da kein Aufzug vorhanden. Kinderzimmer, Bad mit Wanne, WC und Fenster, Küche, Schlafzimmer und Wohnzimmer mit Westbalkon, Abstellkammer.

Energieausweis:

Art: Bedarfsausweis
Gültig bis: 18.4.2018
Endenergieverbrauch: 106.00 kWh/(m²*a)
Baujahr lt. Energieausweis: 1995
Wesentlicher Energieträger:

Lage:

Die Wohnanlage liegt mitten in Kissing (neu), fußläufig zum Bahnhof und Einkaufsmöglichkeiten. Ruhig gelegen.

Ausstattung:

Zur Wohnung gehört ein Kellerabteil und auf der Westseite wurden Balkone angebracht. Die Fassade wurde renoviert! Das Haus und die Wohnung sind in einem guten gepflegtem Zustand

Sonstiges:

Herr Gregor Grimm:
Grimmobilien

Franz-Beck-Straße 21
86551 Aichach

Tel.: 08251-888282