
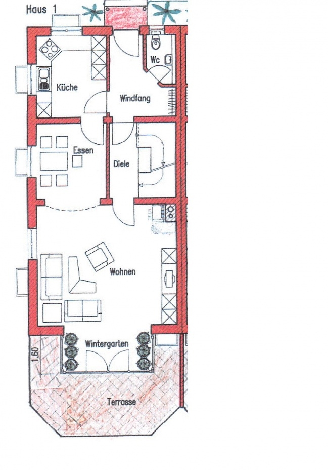
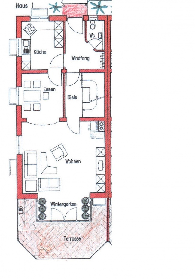
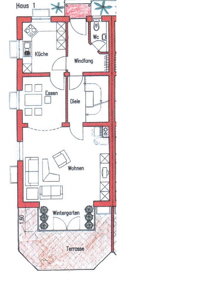
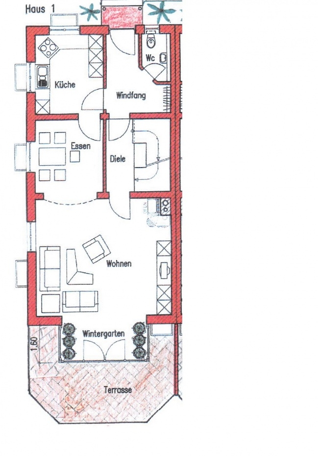
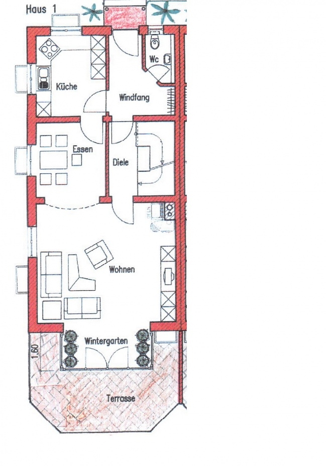
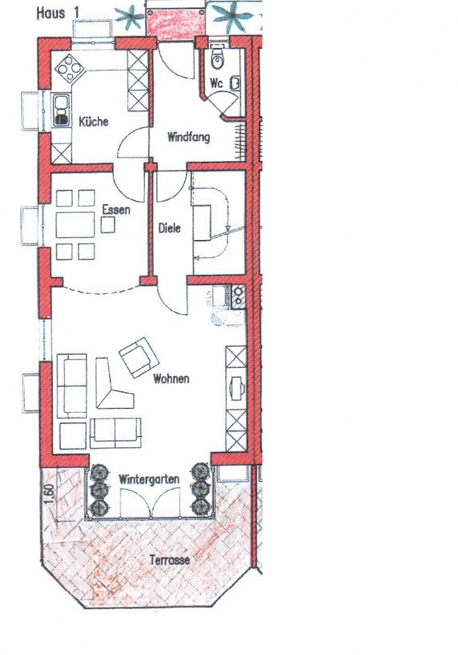
Erdgeschoss: Flur; Gäste-WC; Küche (Einbauküche hell und modern) mit zwei Fenstern; Durchgang ins Esszimmer und großes, helles Wohnzimmer mit Wintergarten, großer, Doppel- Terrassentüre auf die große mit echten Natursteinen gepflasterte Südterrasse; Treppenhaus;
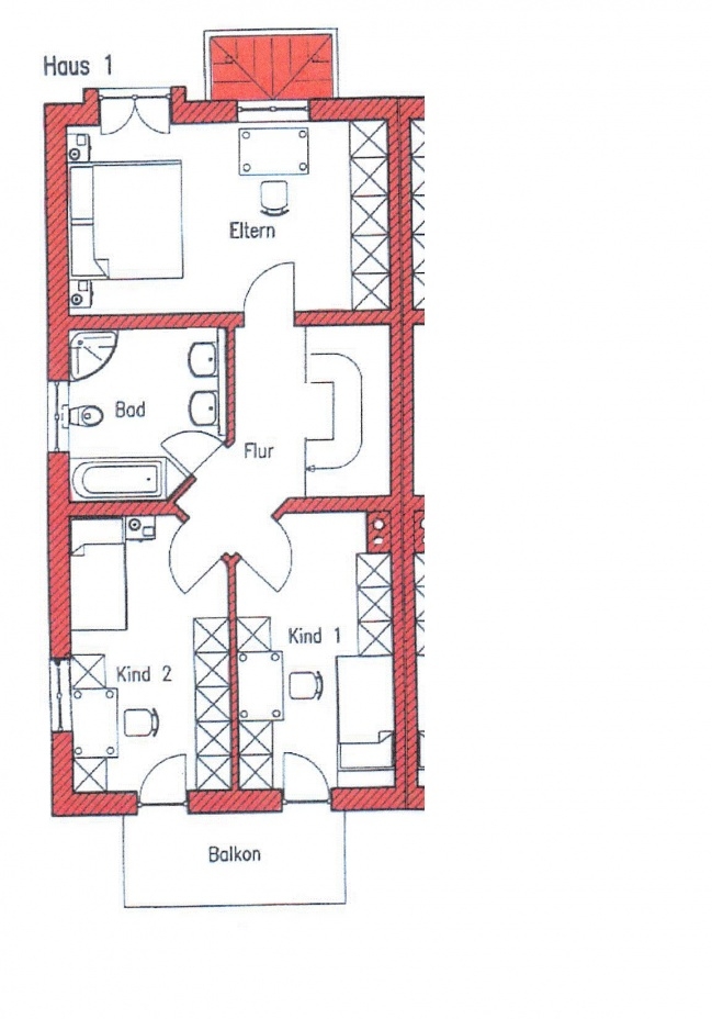
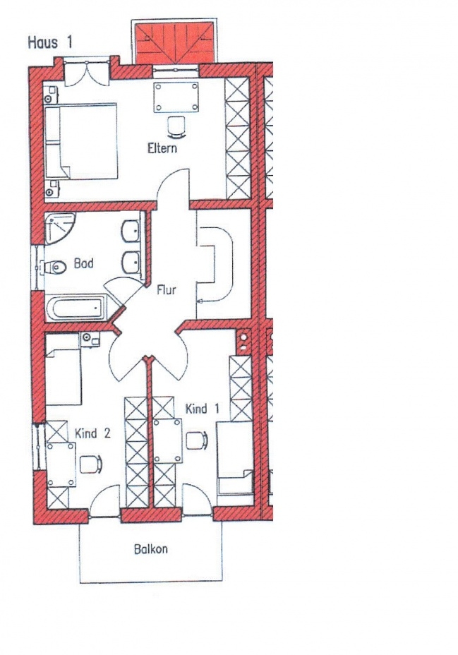
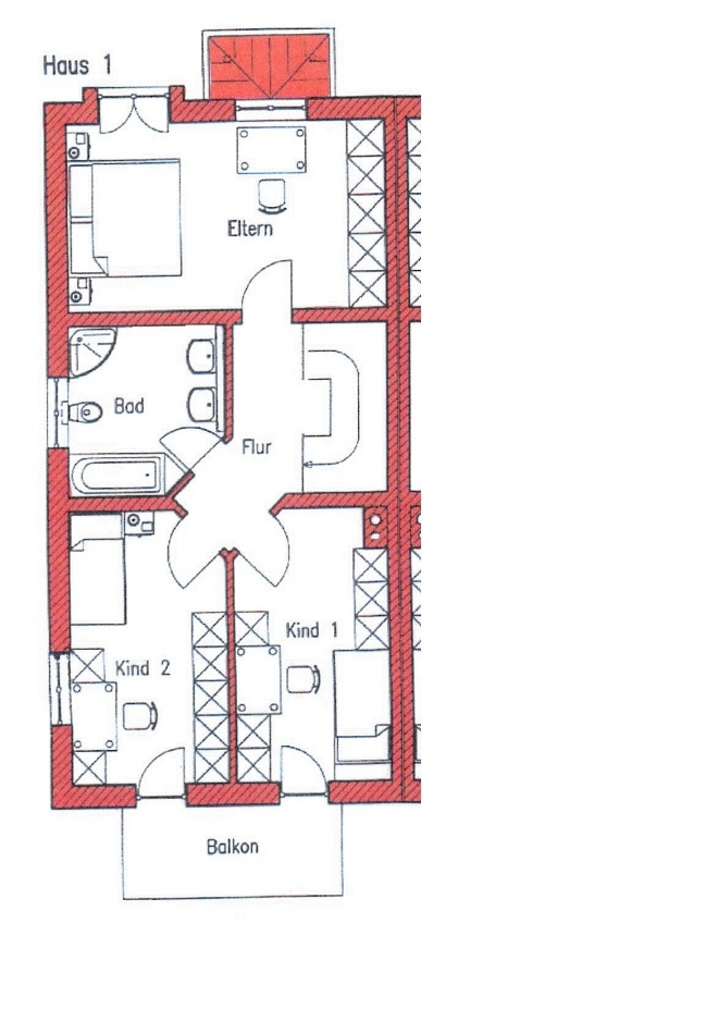
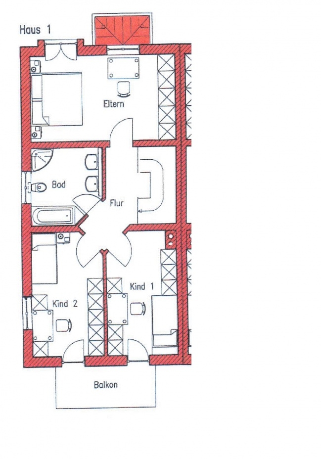
Obergeschoss:
Alle Zimmer bis in die Dachschräge hoch offen!
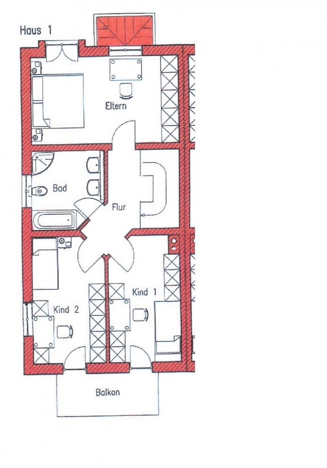
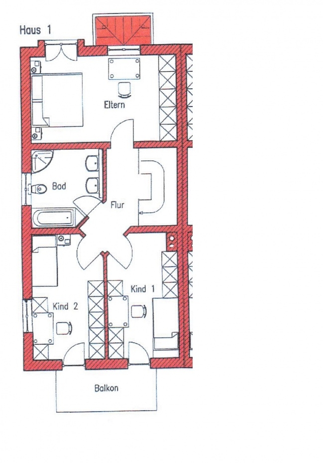
Geräumiges Schlafzimmer; neues, sehr modernes Bad (2014 Kosten 35.000,-€) mit Fenster, bodentiefer Dusche und Echt-Glastrennwand, zwei Waschbecken, Wanne mit Liege / Relaxauflage, moderner Chromhandtuchheizkörper; größeres Zimmer mit Balkontüre und Fenster (waren mal zwei separate Zimmer), indirekter Beleuchtung;
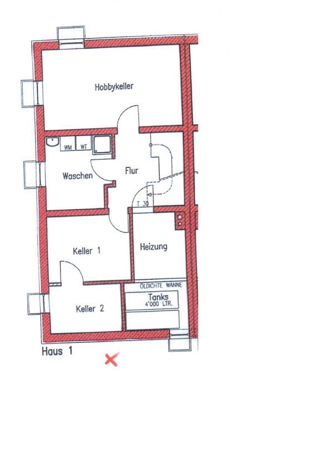
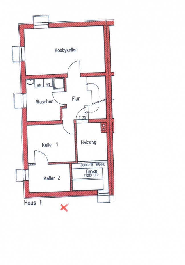
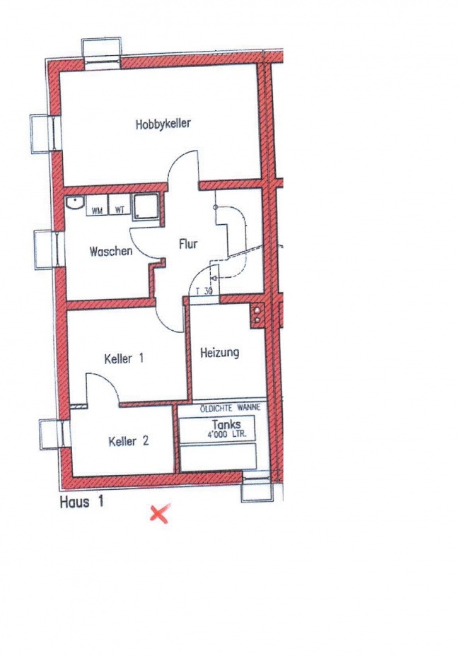
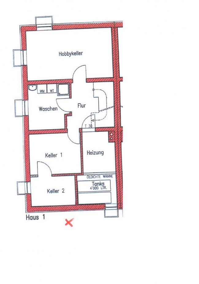
Keller:
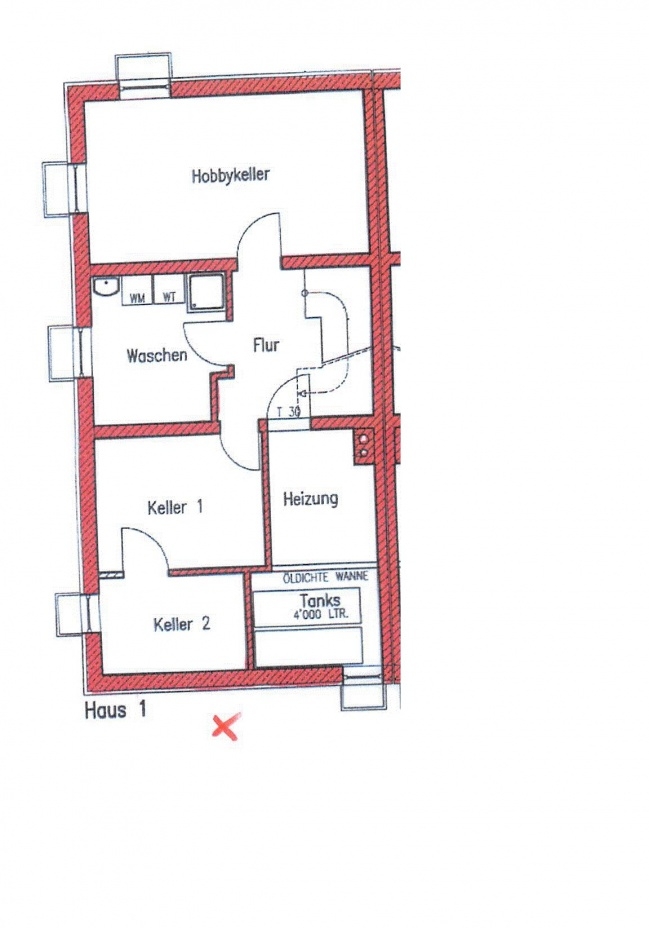
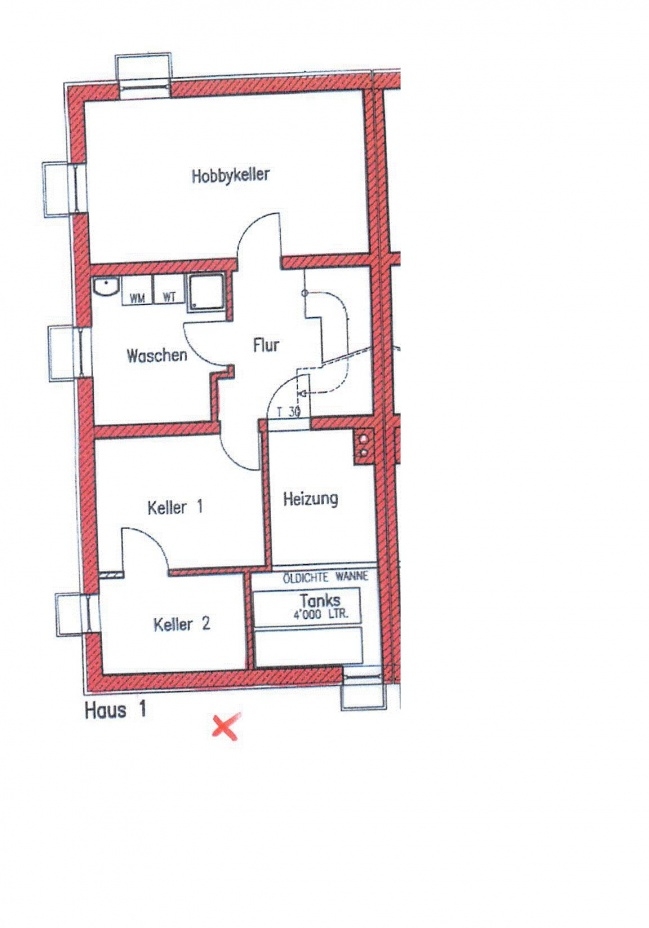
Alle Fenster wurden aufwendig hochwasserdicht mit Vorbauscheibe inkl. Lüftungsöffnungen gemacht. Heizungskeller; Hobbyraum; Stauraum mit Schreiner-Einbau-Möbel; separater Raum; Waschküche;
Garten:
Eingewachsener Garten mit Süd- Ausrichtung, übergroße mit Echtsteinen gepflasterter Terrasse, Zugang in den Garten auch über die Garage möglich, eigener KFZ-Stellplatz vor der Garage;
Art: Verbrauchsausweis
Gültig bis: 01.6.2026
Endenergieverbrauch: 93.30 kWh/(m²*a)
Baujahr lt. Energieausweis: 2001
Wesentlicher Energieträger: Öl
Dießen am Ammersee Ortsteil St. Alban, 3 Gehminuten bis zum wohl schönsteten Strand "Strandbad St. Alban", Lauf nähe Gymnasium; sehr ruhig gelegen in einer Sackgasse und Privatstraße (WEG). Es handelt sich um eine "West"- Doppelhaushälfte, also sehr hell und viel Sonne!
Sehr gepflegte, moderne Doppelhaushälfte im Toskanastiel;
Das Haus wurde bis jetzt "nur" als Ferienhaus der Eigentümer genutzt (kaum Gebrauchsspuren)
- Einbauküche mit Elektrogeräten
- Wohn- Ess- und Schlafzimmer mit teurem, echten Eichenparkett
- Heizkörperverkleidungen vom Schreiner gefertigt
- Schöner, eingewachsener Garten
- Hochwassergeschützt (wichtig für Elementarversicherung)
- Ammersee in Geh- Nähe (3 min.) Strandbad St. Alban
- ruhig gelegen, da kein Durchgangsverkehr (Sackgasse)
- Schulnähe (Gymnasium)
Herr Gregor Grimm:
Grimmobilien
Franz-Beck-Straße 21
86551 Aichach
Tel.: 08251-888282
Email: info@grimmobilien.net
Homepage: www.grimmobilien.net