
Bei der hier angebotenen Immobilie handelt es sich um eine Zwei-Zimmer-Wohnung mit Küche und Bad im Herzen von Augsburg. Die Wohnung ist im dritten Stock und nach Westen in einen ruhigen Innenhof ausgerichtet. Kein Aufzug vorhanden, im Haus gibt es insgesamt elf Wohnungen, keinen Aufzug!
Wohnung:
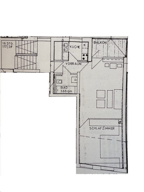
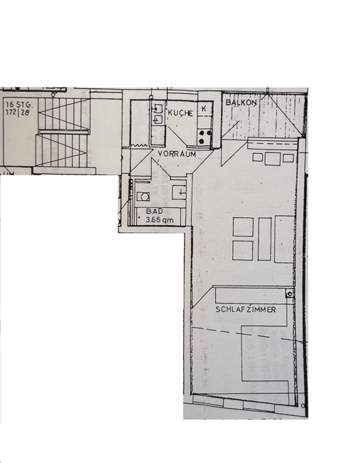
Flur, gleich links eine kleine Abstellnische. Links auch die Küche, gegenüber das Bad mit umgebauter großer bodentiefer Dusche (neu), Waschbecken und WC. Esszimmer mit Westbalkon und Echtholzparkett, Schlafzimmer.
Die Wohnung ist frei, also nicht vermietet.
Art: Verbrauchsausweis
Gültig bis: 09.7.2028
Endenergieverbrauch: 153.00 kWh/(m²*a)
Baujahr lt. Energieausweis: 2007
Wesentlicher Energieträger: Fernwärme Dampf
Die Wohnung liegt zentral in der Altstadt von Augsburg.
- Echtholzparkett
- bodentiefe Dusche
- Balkon
- großer, separat abgeteilter Kellerraum mit Fenster und Strom
Hinweis:
Ein Stellplatz sowie Aufzug ist nicht vorhanden.
Zahlbare Käuferprovision (Maklerkosten) 3,00 % zzgl. gültige MwSt. auf den beurkundeten Kaufpreis. Fällig bei Notartermin.
Wir weisen darauf hin, dass wir für den jeweils anderen Vertragspartner ebenfalls für 3,00 % zzgl. gültige MwSt. entgeltlich tätig sind.
Als Immobiliendienstleister sind wir gesetzlich dazu verpflichtet die Identitäten unsere Kunden festzustellen. § 2 Abs. 1 Nr. 10 Geldwäschegesetz (GwG).
Bei einer konkreten Kaufabsicht ist deswegen ein gültiger Personalausweis auf Verlangen vorzulegen.
Für die Richtigkeit unserer Angaben übernehmen wir keine Haftung. Wir versichern jedoch, dieses Angebot nach bestem Wissen und den uns übermittelten Angaben erstellt zu haben. Der Grundrissplan ist zur Maßentnahme nicht geeignet.
Herr Gregor Grimm:
Grimmobilien
Franz-Beck-Straße 21
86551 Aichach
Tel.: 08251-888282
Email: info@grimmobilien.net
Homepage: www.grimmobilien.net