Große, helle Wohnung in bevorzugter Wohnlagen

NutzungsartWohnen
VermarktungsartKauf
ObjektartWohnung
ObjekttypHochparterre
PLZ86156
OrtKriegshaber
LandDeutschland
Nutzfläche12.00 m²
Wohnfläche115.00 m²
Anzahl Zimmer5.00
Anzahl Schlafzimmer4.00
Anzahl Badezimmer1.00
Anzahl sep. WC1.00
Balkon/Terrasse4 m²
Heizungsart Zentralheizung
Etagenzahl1
FahrstuhlKein Fahrstuhl
Kabel Sat TVJa
externe ObjnrOX685
StatusArchiviert
Betreuer
Kaufpreis444.000 €
Außen-Provision3,57 %
erstellt am09.11.2025
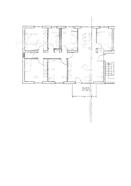
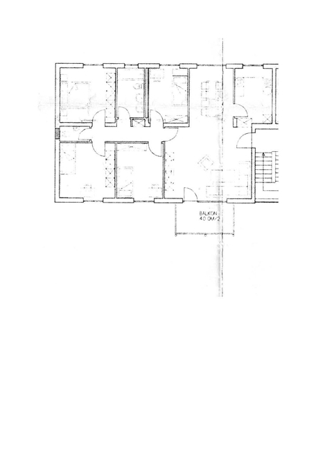
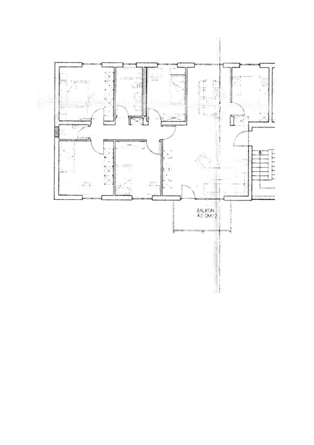
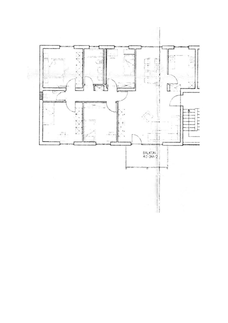
Objektbeschreibung:

Wie bieten hier eine sehr schöne und helle Hochparterrewohnung mit 4 Schlafzimmern, offenem Wohn-Esszimmer und Küche (Einbauküche nicht enthalten) an.
Es Gibt ein Badezimmer mit WC, Wanne, Doppelwaschtisch und Fenster. Flur mit kleiner Speis und Rundbogen in den Wohnraum.
Das separate WC wurde demontiert und der Raum wird als Waschraum mit Waschmaschine genutzt kann aber wieder als WC zurückgebaut werden.
Die Schlafräume und Bad sind mit einer Türe vom Wohnbereich abgetrennt.
Die letzte große Sanierung der Wohnung wurde 2013 durchgeführt, die Fenster wurden 1997 erneuert.
Es gibt direkt vor dem Haus einen Carport und einen separaten Kellerraum neben dem Kellerausgang.
Balkontüre, Treppe vom Balkon in den Garten, Garten mit Platz für Pool und Trampolin.
Der Eigene Garten ist mit einer Hecke eingewachsen und hat ein eigenes Gartentürchen.

Energieausweis:

Art: Verbrauchsausweis
Gültig bis: 29.8.2028
Endenergieverbrauch: 124.40 kWh/(m²*a)
Baujahr lt. Energieausweis: 1997
Wesentlicher Energieträger: Fernwärme Dampf

Lage:

Zentrale , dennoch ruhige Lage, Einkaufsmöglichkeiten, Spielplatz und Sport plätze (Basketball und BMX-Pool sind in wenigen Minuten zu Fuß erreichbar. Kindergarten und Schule ebenfalls.
Sehr gute Verkehrsanbindung zur B300 + B17 und schließlich zur Autobahn A8 dadurch sehr gute Anbindung für Münchenpendler.
Straßenbahn und Bus direkt vor der Haustür!

Ausstattung:
  • 5 Zimmer
  • 4 Schlafzimmer
  • Offener Wohn-Ess-Küchenbereich
  • Bad mit Fenster
  • WC
  • Kleine Speiß
  • Helle Räume
  • Eigener Garten
  • Balkon Südseite
  • gemeinschaftlicher Wäscheraum
  • Eigener Kellerraum
  • abgesperrter seperater Fahrradraum
  • Carport
Sonstiges:

Zahlbare Käuferprovision (Maklerkosten) 3,00 % zzgl. gültige MwSt. auf den beurkundeten Kaufpreis. Fällig bei Notartermin.
Wir weisen darauf hin, dass wir für den jeweils anderen Vertragspartner ebenfalls für 3,00 % zzgl. gültige MwSt. entgeltlich tätig sind.

Als Immobiliendienstleister sind wir gesetzlich dazu verpflichtet die Identitäten unsere Kunden festzustellen. § 2 Abs. 1 Nr. 10 Geldwäschegesetz (GwG).

Bei einer konkreten Kaufabsicht ist deswegen ein gültiger Personalausweis auf Verlangen vorzulegen.

Für die Richtigkeit unserer Angaben übernehmen wir keine Haftung. Wir versichern jedoch, dieses Angebot nach bestem Wissen und den uns übermittelten Angaben erstellt zu haben. Der Grundrissplan ist zur Maßentnahme nicht geeignet.

Wir übernehmen alle Angaben des Verkäufers und prüfen diese nicht nach!

Herr Gregor Grimm:
Grimmobilien

Franz-Beck-Straße 21
86551 Aichach

Tel.: 08251-888282