
Das Objekt wurde bereits verkauft? Kein Problem! Schauen Sie sich hier unsere aktuellen Kaufobjekte an.
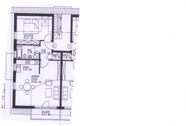
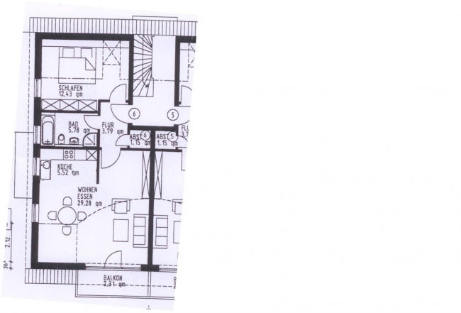
Die hier zum Kauf stehende Wohnung, befindet sich im zweiten Obergeschoß eines Sechsparteienhauses.
Es gibt ein großes Wohn-Esszimmer mit offener Küche, sowie eine große Gaube mit Südbalkon; Bad mit Wanne, separater Dusche, WC und Fenster; Schlafzimmer und eine Abstellkammer.
Art: Verbrauchsausweis
Gültig bis: 16.5.2018
Endenergieverbrauch: 121.00 kWh/(m²*a)
Baujahr lt. Energieausweis: 2000
Wesentlicher Energieträger: Fernwärme
Die Zweizimmer Dachgeschosswohnung befindet sich in einem ruhigen Wohngebiet im Norden von Aichach. Sie kaufen eine helle Wohnung mit Südbalkon und Penthouseflair.
- offene Wohnküche
- Laminatboden
- hohe Räume durch offenen Dachstuhl
- Südbalkon
- Bad mit Wanne, Dusche und Fenster
- Kellerraum
- Stellplatz
- sehr gepflegt
- ruhige Lage
Herr Gregor Grimm:
Grimmobilien
Franz-Beck-Straße 21
86551 Aichach
Tel.: 08251-888282
Email: info@grimmobilien.net
Homepage: www.grimmobilien.net