
Es handelt sich hier um ein dreiteiliges Ensemble, bestehend aus einem Wohn und Geschäftshaus, Ehemaligem Lager und einer gut vermieteten Gastronomie.
Das historische Altstadthaus wurde um 1880 erbaut und ca. 1953 angebaut, das Wohnhaus ist in einem gepflegten Zustand und ist kein Einzeldenkmal. Das Haus wurde 1995 kernsaniert und die Fassade 2017 erneuert und es gab eine Trockenlegung verschiedener Außenmauern durch die Firma Veinal, 2020 wurde die Gasheizung erneuert. Es gibt 4 Außenparkplätze.
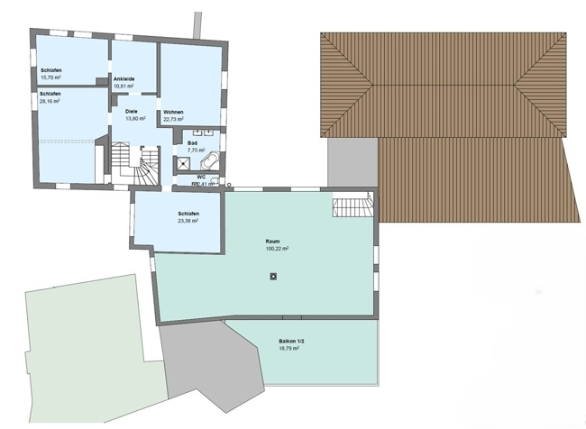
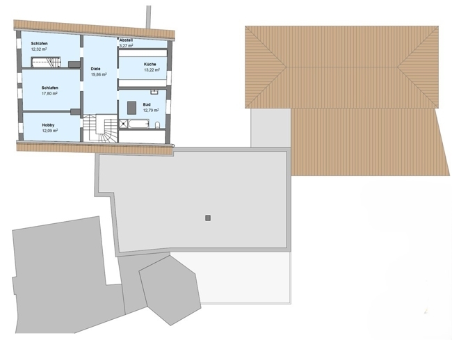
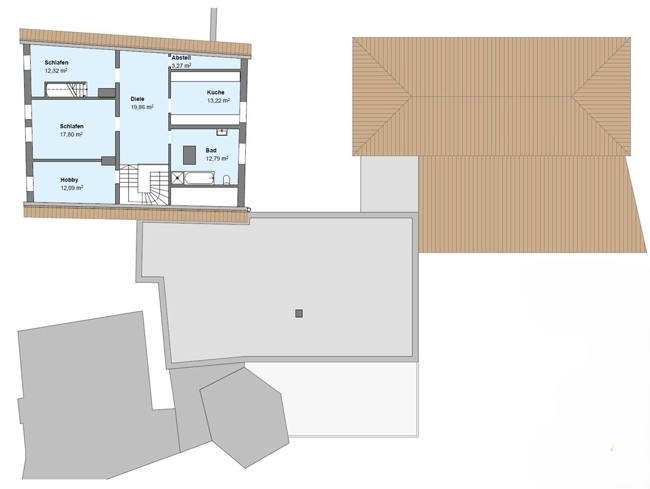
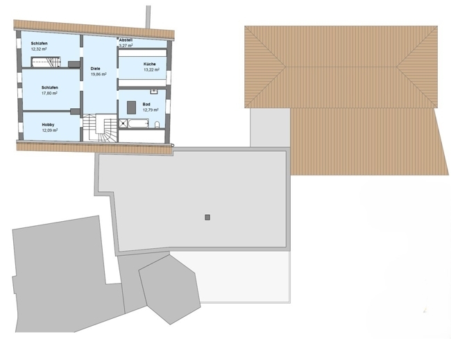
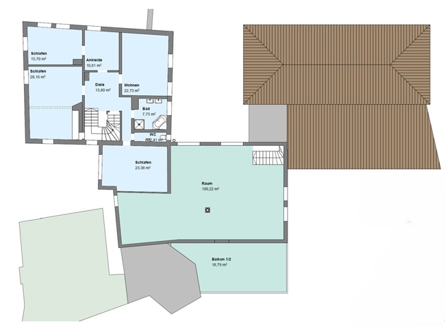
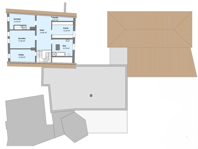
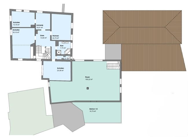
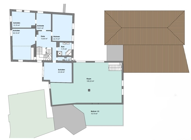
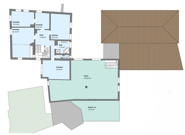
Es gibt zwei Eingänge in das Haupthaus, der Laden im Erdgeschoss ist als Lager vermietet. Die Hauptwohnung erstreckt sich über Teile des Erdgeschosses und des Obergeschosses. Das Dachgeschoss ist ausgebaut und kann als separate Wohnung genutzt werden. Der Dachspitz ist nicht ausgebaut, es gibt einen kleinen Lagerkellerraum und einen kleinen Garten, sowie diverse Lagerräume.
Das Haus bietet auf Grund seiner Größe und der noch nicht ausgebauten Flächen die Möglichkeit, noch weiteren Wohnraum zu schaffen und evtl. mehrere Wohnungen zu bilden.
Gastro:
Ein ehemaliger Showroom wurde 2010 - 2011 komplett zur Gastronomie umgebaut, es gibt einen gut 80 m² großen Gastraum mit Theke und Holzpizzaofen sowie eine Gastroküche, diverse Kühl- und Lagerräume und Toiletten. Die Ein und Umbauten wurden von den Pächtern erstellt und gehören diesen auch. 8 Parkplätze wurden bei der Stadt gekauft, um eine entsprechende Konzession zu erhalten. 2024 gab es Ausbesserungen am Dach. Das Restaurant ist alt eingesessen und möchte auch weiter das Restaurant pachten.
Art: Verbrauchsausweis
Gültig bis: 02.2.2025
Endenergieverbrauch: 127.50 kWh/(m²*a)
Baujahr lt. Energieausweis: 1990
Wesentlicher Energieträger: Gas
Top zentrale Innenstadt Lage, Einkaufsmöglichkeiten fußläufig.
Grundschule und Kindergarten ebenfalls fußläufig
- Top zentrale Innenstadt Lage
- Super Verkehrsanbindung
- Garten
- Esszimmer mit Speckstein- Holzofen
- Beistellofen im Wohnzimmer
- Teilweise Stuck
- Teilweise Parkett- Laminatböden
- Helle Räume
- Einbauküche
- Füllungs-Zimmertüren
- Eingangsüberdachung
- Dachgeschosswohnung
- Kernsanierung 1995
- Neue Fassade 2017
- Trockenlegung verschiedener Außenmauern 2017 durch die Firma Veinal
- neue Gasheizung 2020
- 4 Parkplätze
Gastro
- komplett Umbau 2010 - 2011
- 8 Parkplätze bei der Stadt gekauft
- Ausbesserung des Dachs 2024
Zahlbare Käuferprovision (Maklerkosten) 3,00 % zzgl. gültige MwSt. auf den beurkundeten Kaufpreis. Fällig bei Notartermin.
Wir weisen darauf hin, dass wir für den jeweils anderen Vertragspartner ebenfalls für 3,00 % zzgl. gültige MwSt. entgeltlich tätig sind.
Als Immobiliendienstleister sind wir gesetzlich dazu verpflichtet die Identitäten unsere Kunden festzustellen. § 2 Abs. 1 Nr. 10 Geldwäschegesetz (GwG).
Bei einer konkreten Kaufabsicht ist deswegen ein gültiger Personalausweis auf Verlangen vorzulegen.
Für die Richtigkeit unserer Angaben übernehmen wir keine Haftung. Wir versichern jedoch, dieses Angebot nach bestem Wissen und den uns übermittelten Angaben erstellt zu haben. Der Grundrissplan ist zur Maßentnahme nicht geeignet.
Herr Gregor Grimm:
Grimmobilien
Franz-Beck-Straße 21
86551 Aichach
Tel.: 08251-888282
Email: info@grimmobilien.net
Homepage: www.grimmobilien.net