Landhausvilla in Murnau kaufen

Bei der hier angebotenen Landhausvilla handelt es sich um ein Schmuckstück in Murnau am Staffelsee. Das Einfamilienhaus wurde ursprünglich 1972 erbaut, 1988 erweitert beziehungsweise aufgestockt und schließlich 1996 umgebaut und saniert. Die Villa hat eine Wohnfläche von 370 Quadratmetern und einer Grundstücksfläche von 2080 Quadratmeter. Durch die Hanglage gibt es im Untergeschoss einen Wellnessbereich mit direktem Gartenzugang.
Erdgeschoss:
Die Eingangsdiele ist Holz vertäfelt, repräsentative Halle mit Massivholz Treppe und Holzdecke sowie Kachelofen und Fensterfront in den Garten, großes Wohnzimmer ein weiteres kleineres Zimmer sowie ein Duschbad, Esszimmer, Küche und Speis mit mehreren Ausgängen auf der Terrasse.
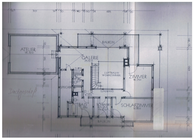
Dachgeschoss:
Große Galerie mit Westbalkon, großes Atelier, separates WC, großes Badezimmer mit Dusche Badewanne und Balkontüre, 3 weitere Zimmer in verschiedenen Größen.
Souterrain:
Waschkeller, kleines Bad, Heizungsraum, Wellness Bereich mit Hallenbad, Whirlpool, Sauna und Dusche, Büro mit separatem Eingang und anschließender Werkstatt; Einliegerwohnung mit separatem Eingang kleiner Küche und Bad
Art: Verbrauchsausweis
Gültig bis: 08.7.2025
Endenergieverbrauch: 279.00 kWh/(m²*a)
Baujahr lt. Energieausweis: 1996
Wesentlicher Energieträger: Öl
Die Landhausvilla liegt ruhig gelegen am Ortsrand von Murnau zwischen Riegsee und Staffelsee, angrenzend an Felder und Wiesen. Schulen Einkaufsmöglichkeiten sind schnell zu erreichen.
Wellness Bereich mit Bad, Whirlpool, Sauna und Dusche auf Gartenniveau
Einliegerwohnung mit Küche und Bad sowie separatem Eingang
Treppenlift vom EG ins DG
Personenaufzug ins Untergeschoss
Kachelofen im Wohnbereich
repräsentative Holzverkleidungen sowie Holzdecken
elektrische Rollläden
Wasserenthärtungsanlage
Zweimal Doppelgarage
Zahlbare Käuferprovision (Maklerkosten) 3,00 % zzgl. gültige MwSt. auf den beurkundeten Kaufpreis. Fällig bei Notartermin.
Wir weisen darauf hin, dass wir für den jeweils anderen Vertragspartner ebenfalls für 3,00 % zzgl. gültige MwSt. entgeltlich tätig sind.
Als Immobiliendienstleister sind wir gesetzlich dazu verpflichtet die Identitäten unsere Kunden festzustellen. § 2 Abs. 1 Nr. 10 Geldwäschegesetz (GwG).
Für die Richtigkeit unserer Angaben übernehmen wir keine Haftung. Wir versichern jedoch, dieses Angebot nach bestem Wissen und den uns übermittelten Angaben erstellt zu haben. Der Grundrissplan ist zur Maßentnahme nicht geeignet.
Bei einer konkreten Kaufabsicht ist deswegen ein gültiger Personalausweis auf Verlangen vorzulegen.
Herr Gregor Grimm:
Grimmobilien
Franz-Beck-Straße 21
86551 Aichach
Tel.: 08251-888282
Email: info@grimmobilien.net
Homepage: www.grimmobilien.net