Erfoglreich verkauft

Das Objekt wurde bereits verkauft? Kein Problem! Schauen Sie sich hier unsere aktuellen Kaufobjekte an.

Hier aktuelle Kaufangebote ansehen!
NutzungsartWohnen
VermarktungsartKauf
ObjektartHaus
ObjekttypEinfamilienhaus
PLZ86919
OrtUtting am Ammersee
LandDeutschland
Nutzfläche80.00 m²
Grundstücksgröße1165.00 m²
Wohnfläche140.00 m²
Anzahl Zimmer4.00
Anzahl Schlafzimmer3.00
Anzahl Badezimmer2.00
Anzahl sep. WC1.00
Befeuerung Öl
Heizungsart Zentralheizung
Etagenzahl2
Kabel Sat TVJa
externe ObjnrIH513
StatusArchiviert
Betreuer
erstellt am29.02.2016
Objektbeschreibung:

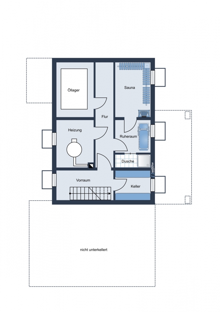
Das 1984 gebaute Einfamilienhaus ist voll unterkellert.

Erdgeschoss: Windfang, Garderobe, WC, Abstellkammer Badezimmer so wie zwei Schlafzimmer mit Balkontüre zur großen Terrasse mit Seeblick auf den Ammersee.

Obergeschoss: Großes, helles Wohn-Esszimmer mit Balkon und Blick auf den Ammersee, Küche, Schlafzimmer, Bad und WC.

Keller: Gefliest Kellerräume zum Ausbau für eine Sauna bzw. Wellnessbereich, Heizungsraum und Waschküche.

Energieausweis:

Art: Verbrauchsausweis
Gültig bis: 10.3.2026
Endenergieverbrauch: 117.10 kWh/(m²*a)
Baujahr lt. Energieausweis: 2010
Wesentlicher Energieträger: Öl

Lage:

Das Grundstück liegt an einer ruhigen Nebenstraße am Westufer des Ammersees in Utting.

Ausstattung:

Die Ölheizung wurde 2010 erneuert, Energieausweis wird gerade erstellt. Es gibt eine Doppelgarage mit elektrischem Torantrieb sowie Stromanschluss, einen separaten absperrbaren Nebenraum für Gartenmöbel usw.
Das Grundstück flacht zum See hin ab und ist eingewachsen.

Sonstiges:

Das Haus ist in einem gepflegten Zustand und wurde als Ferienhaus genutzt, ist frei und kann sofort bezogen werden.

Herr Gregor Grimm:
Grimmobilien

Franz-Beck-Straße 21
86551 Aichach

Tel.: 08251-888282