
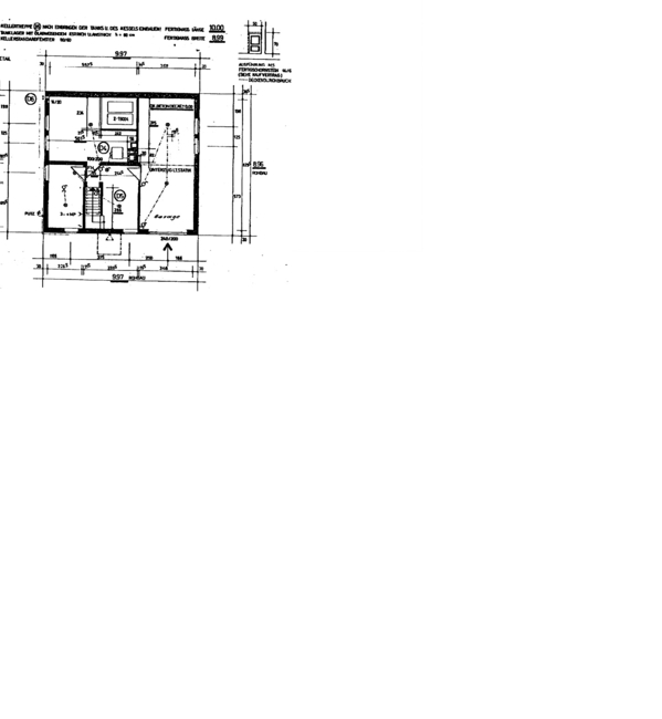
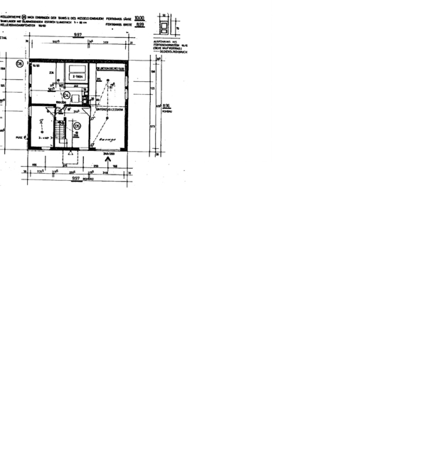
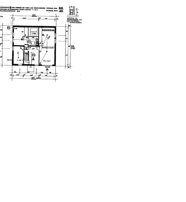
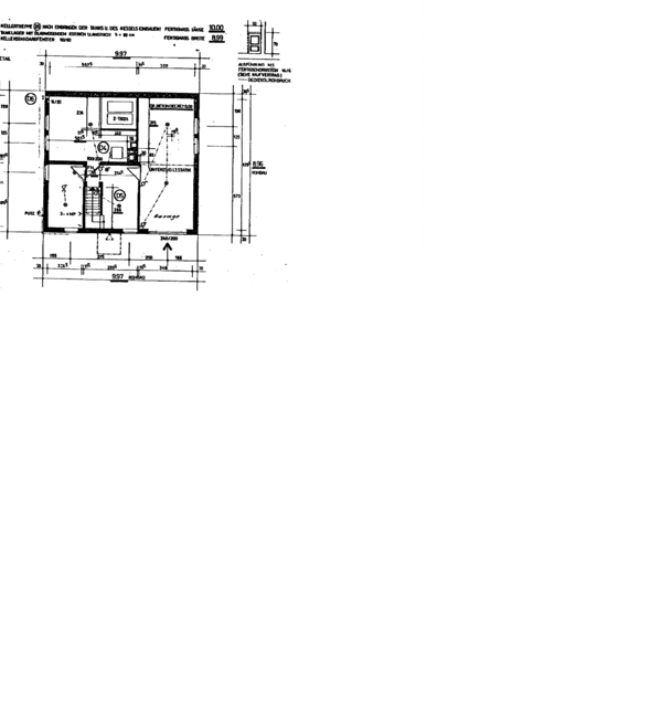
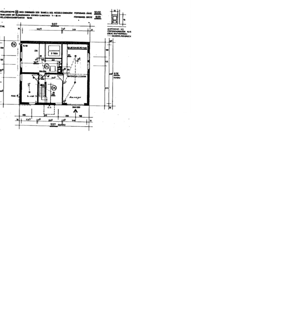
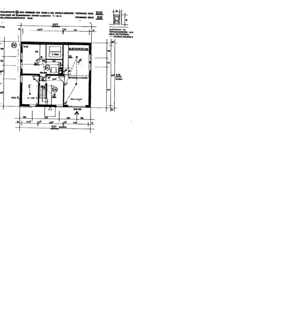
Beim hier angebotenen Einfamilienhaus handelt es sich um ein Qualitäts-Fertighaus der Firma OKAL Typ 92. Das Haus ist vollunterkellert, die großzügige Garage befindet sich ebenfalls im Keller.
Erdgeschoss:
Diele mit Gäste WC, Flur, großes Wohnzimmer mit Terrassentüre auf die große Veranda, offener Durchgang in das geräumige Esszimmer, Küche sowie ein separates Schlafzimmer, Bad mit Wanne, WC und Fenster.
Obergeschoss:
Flur (Schrankzimmer), Duschbad mit WC und Dachflächenfenster, ein kleineres Schlafzimmer und ein größeres Schlafzimmer.
Das Haus ist weitgehend im original Zustand und an der ein oder anderen Stelle sollte renoviert bzw. modernisiert werden.
Art: Verbrauchsausweis
Gültig bis: 14.6.2031
Endenergieverbrauch: 108.40 kWh/(m²*a)
Baujahr lt. Energieausweis: 2012
Wesentlicher Energieträger: Gas
Das Haus liegt sehr schön am Hang und am Ende einer Sackgasse, also wirklich sehr ruhig mit wunderschönem Ausblick.
Der Bahnhof Obergriesbach ist nur wenige Gehminuten entfernt und verbindet die Strecke Augsburg-Ingolstadt.
Mit dem Auto erreicht man die Kreisstadt Aichach in wenigen Minuten so wie die B300 bzw. die Autobahn A8 München-Stuttgart.
Es gibt 5 Zimmer und zwei Bäder.
Auf der Südseite gibt es eine Terrassenüberdachung sowie einen Pool welcher aber nicht mehr in Betrieb ist. Auf der Westweite steht ein kleines Gartenhäuschen.
Zahlbare Käuferprovision (Maklerkosten) 3,00 % zzgl. gültige MwSt. auf den beurkundeten Kaufpreis. Fällig bei Notartermin.
Wir weisen darauf hin, dass wir für den jeweils anderen Vertragspartner ebenfalls für 3,00 % zzgl. gültige MwSt. entgeltlich tätig sind.
Als Immobiliendienstleister sind wir gesetzlich dazu verpflichtet die Identitäten unsere Kunden festzustellen. § 2 Abs. 1 Nr. 10 Geldwäschegesetz (GwG).
Für die Richtigkeit unserer Angaben übernehmen wir keine Haftung. Wir versichern jedoch, dieses Angebot nach bestem Wissen und den uns übermittelten Angaben erstellt zu haben. Der Grundrissplan ist zur Maßentnahme nicht geeignet.
Bei einer konkreten Kaufabsicht ist deswegen ein gültiger Personalausweis auf Verlangen vorzulegen.
Herr Gregor Grimm:
Grimmobilien
Franz-Beck-Straße 21
86551 Aichach
Tel.: 08251-888282
Email: info@grimmobilien.net
Homepage: www.grimmobilien.net