Erfoglreich verkauft

Das Objekt wurde bereits verkauft? Kein Problem! Schauen Sie sich hier unsere aktuellen Kaufobjekte an.

Hier aktuelle Kaufangebote ansehen!
NutzungsartWohnen
VermarktungsartKauf
ObjektartHaus
ObjekttypEinfamilienhaus
PLZ86576
OrtSchiltberg
LandDeutschland
Nutzfläche20.00 m²
Grundstücksgröße70.00 m²
Wohnfläche65.00 m²
Gesamtfläche85.00 m²
Anzahl Zimmer3.00
Anzahl Schlafzimmer2.00
Anzahl Badezimmer1.00
Befeuerung Elektro, Holz
Heizungsart Ofenheizung
Etagenzahl1
Kabel Sat TVNein
externe ObjnrPO151
StatusArchiviert
Betreuer
erstellt am05.05.2025
Objektbeschreibung:

Wir bieten hier ein renovierungsbedürftiges Einfamilienhaus zum Kauf an.
Das Grundstück des Hauses ist nur so groß wie das Haus selbst. Der Garten darum ist aktuell gepachtet, kann aber auch zusätzlich erworben werden. Auf dem Grundstück befindet sich ein kleiner Stadel sowie ein PKW Stellplatz.
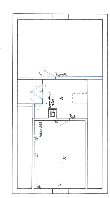
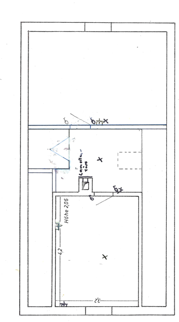
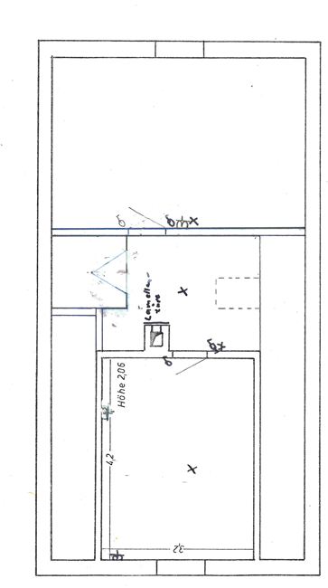
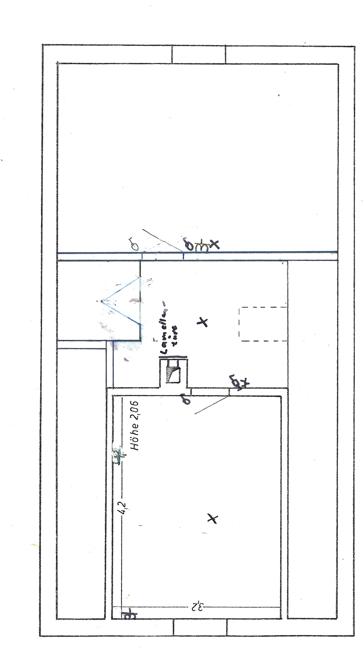
Erdgeschoss:
Mittiger Eingang, links ein größeres Zimmer, rechts Wohnküche, hinter halb linkes ein weiteres kleines Zimmer und rechts Technikum und ein kleines Duschbad. Wendeltreppe nach oben:
Dachgeschoss:
Flur, Zimmer links und rechts ein unausgebauter Speicherraum.

Energieausweis:

Art: Bedarfsausweis
Gültig bis: 30.3.2035
Endenergieverbrauch: 0.00 kWh/(m²*a)
Baujahr lt. Energieausweis: 1948
Wesentlicher Energieträger: Holz

Lage:

Das Haus befindet sich in Schiltberg östlich von Aichach.

Ausstattung:
  • 3 Zimmer
  • Wohnküche
  • Holzöfen, Elektroradiatoren
  • Teilw. Laminatböden
  • Nicht vermietet
Sonstiges:

Zahlbare Käuferprovision (Maklerkosten) 5,00 % zzgl. gültige MwSt. auf den beurkundeten Kaufpreis. Fällig bei Notartermin.
Wir weisen darauf hin, dass wir für den jeweils anderen Vertragspartner ebenfalls für 5,00 % zzgl. gültige MwSt. entgeltlich tätig sind.

Als Immobiliendienstleister sind wir gesetzlich dazu verpflichtet die Identitäten unsere Kunden festzustellen. § 2 Abs. 1 Nr. 10 Geldwäschegesetz (GwG).

Für die Richtigkeit unserer Angaben übernehmen wir keine Haftung. Wir versichern jedoch, dieses Angebot nach bestem Wissen und den uns übermittelten Angaben erstellt zu haben. Der Grundrissplan ist zur Maßentnahme nicht geeignet.

Bei einer konkreten Kaufabsicht ist deswegen ein gültiger Personalausweis auf Verlangen vorzulegen.

Herr Gregor Grimm:
Grimmobilien

Franz-Beck-Straße 21
86551 Aichach

Tel.: 08251-888282