Erfoglreich verkauft

Das Objekt wurde bereits verkauft? Kein Problem! Schauen Sie sich hier unsere aktuellen Kaufobjekte an.

Hier aktuelle Kaufangebote ansehen!
NutzungsartWohnen
VermarktungsartKauf
ObjektartHaus
ObjekttypDoppelhaushälfte
PLZ86316
OrtFriedberg / Bachern
LandDeutschland
Grundstücksgröße263.00 m²
Wohnfläche107.00 m²
Anzahl Zimmer5.00
Anzahl Schlafzimmer3.00
Anzahl Badezimmer2.00
Anzahl sep. WC1.00
Befeuerung Gas
Heizungsart Zentralheizung
Etagenzahl2
Kabel Sat TVJa
externe ObjnrWV966
StatusArchiviert
Betreuer
erstellt am10.07.2017
Objektbeschreibung:

Die Doppelhaushälfte ist hochwertig ausgestattet und in einem geplagten Zustand.
Erdgeschoss: Eingangsbereich mit Garderobe;. Diele mit separatem WC; das ehemalige Arbeitszimmer (siehe Plan) wurde in ein Barrierefreies Duschbad umgebaut; Küche; Wohn-Esszimmer (hier wurde nachträglich ein kleines Zimmer abgetrennt), Terrassentüre.
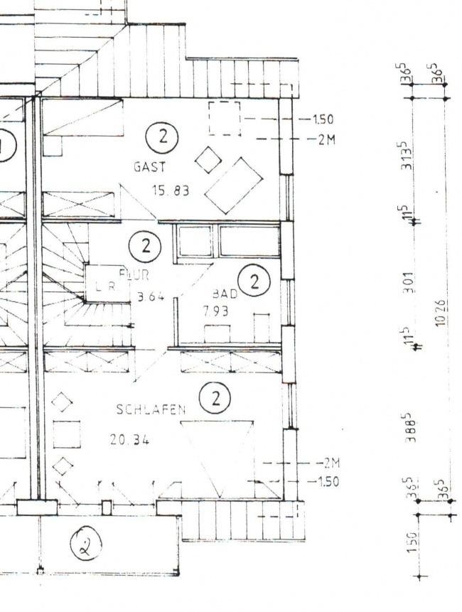
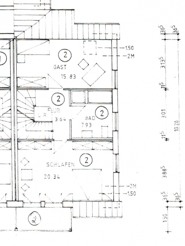
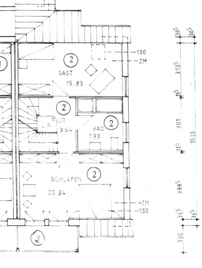
Obergeschoss: Flur; Schlafzimmer mit Nordausrichtung und ein großes Schlafzimmer mit Südausrichtung und Balkon; Badezimmer mit Dusche und Eckbadewanne;
Dachgeschoss: ausgebautes, sehr helles Studio.
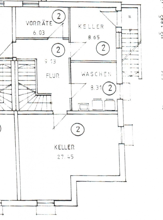
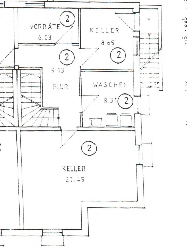
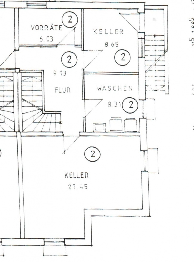
Keller: Flur, Vorratsraum, Kellerraum mit Außen-Kellertreppe, Waschküche, großer gefliester Hobbykeller mit Heizung und Tageslicht;

Energieausweis:

Art:
Gültig bis: 02.12.-0001
Endenergieverbrauch: 0.00 kWh/(m²*a)
Baujahr lt. Energieausweis: 0
Wesentlicher Energieträger:

Lage:

Die Doppelhaus hälfe liegt in einem ruhigen und schönen Wohngebiet in Friedberg-Bachern mit guter Verkehrsanbindung Richtung Augsburg und München.

Ausstattung:

Die Doppelhaushälfte ist sehr gut ausgestattet.
Geflieste Terrasse mit Markise;
schön angelegter Garten,
Kelleraußentreppe, Großer Hobbyraum mit Heizung und Tageslicht,
Eingangsüberdachung,
große Fenster mit Sprossen;
barrierefreie Dusche im EG;
teilweise Echtparkettböden;
elektrische Rollläden,
zentrale Staubsaugeranlage!!!

Sonstiges:

Die Doppelhaushälften sind real nicht geteilt, es handelt sich also um eine Eigentümergemeinschaft mit gemeinsamer Heizung bzw. Haustechnik und nicht abgetrennter Garage, Garten und Balkon, dies wurde in der Preisfindung großzügig berücksichtigt.

Herr Gregor Grimm:
Grimmobilien

Franz-Beck-Straße 21
86551 Aichach

Tel.: 08251-888282