NutzungsartWohnen
VermarktungsartKauf
ObjektartHaus
ObjekttypDoppelhaushälfte
PLZ86911
OrtDießen am Ammersee
LandDeutschland
Nutzfläche57.00 m²
Grundstücksgröße295.00 m²
Wohnfläche130.00 m²
Anzahl Zimmer4.00
Anzahl Schlafzimmer2.00
Anzahl Badezimmer1.00
Anzahl sep. WC1.00
Befeuerung Öl
Heizungsart Zentralheizung
Etagenzahl2
Kabel Sat TVJa
externe ObjnrEF065
StatusArchiviert
Betreuer
Kaufpreis620.000 €
Außen-Provision3,57 %
erstellt am10.06.2016
Objektbeschreibung:

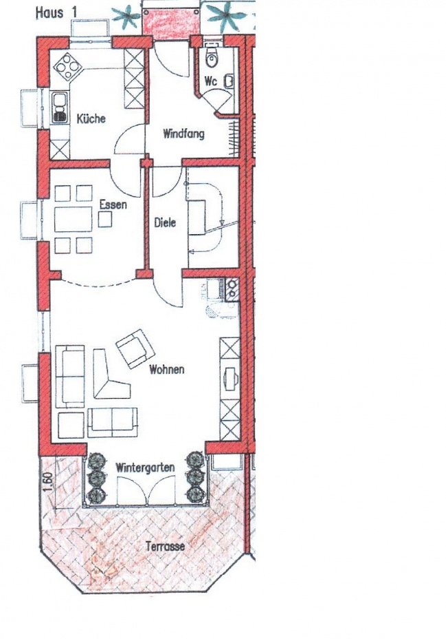
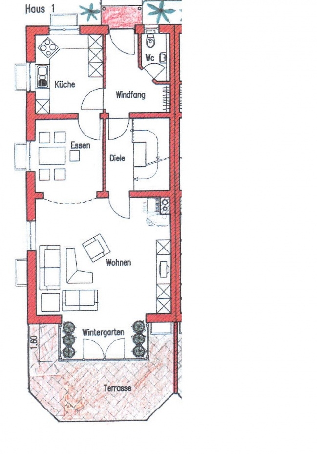
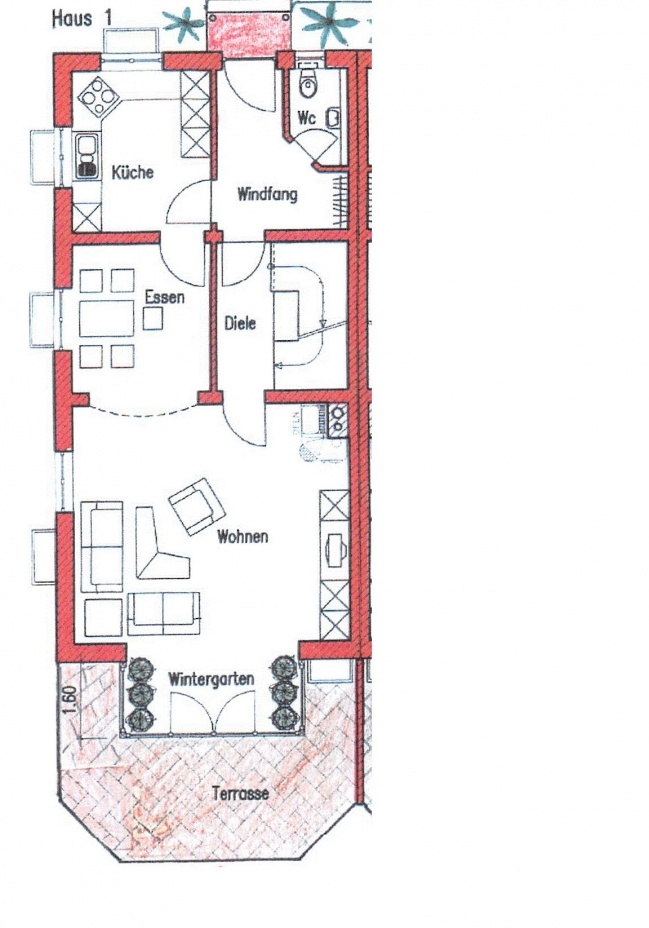
Erdgeschoss: Flur; Gäste-WC; Küche (Einbauküche hell und modern) mit zwei Fenstern; Durchgang ins Esszimmer und großes, helles Wohnzimmer mit Wintergarten, großer, Doppel- Terrassentüre auf die große mit echten Natursteinen gepflasterte Südterrasse; Treppenhaus;

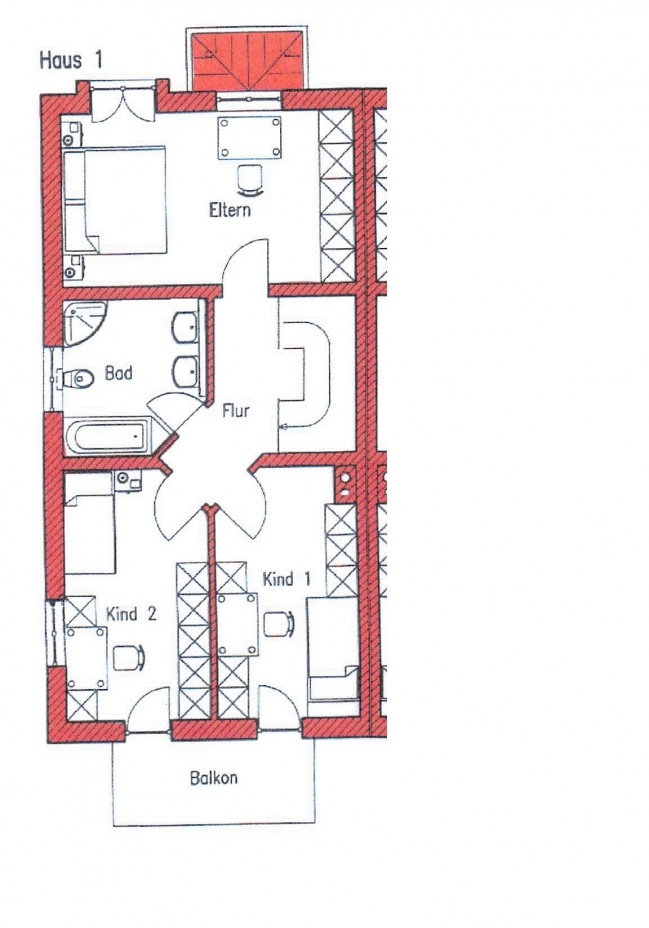
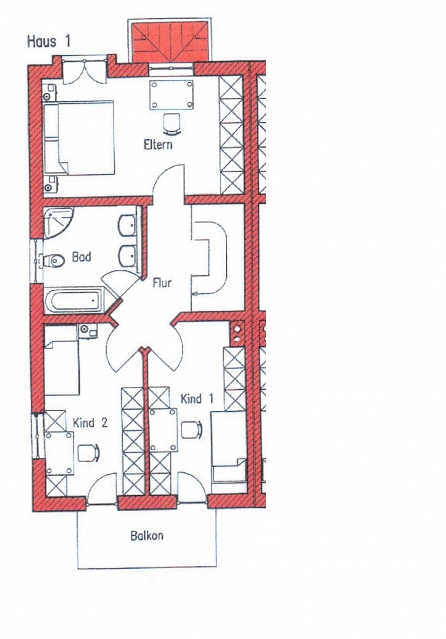
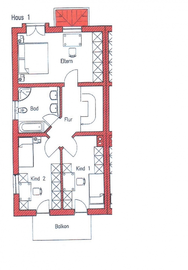
Obergeschoss:
Alle Zimmer bis in die Dachschräge hoch offen!
Geräumiges Schlafzimmer; neues, sehr modernes Bad (2014 Kosten 35.000,-€) mit Fenster, bodentiefer Dusche und Echt-Glastrennwand, zwei Waschbecken, Wanne mit Liege / Relaxauflage, moderner Chromhandtuchheizkörper; größeres Zimmer mit Balkontüre und Fenster (waren mal zwei separate Zimmer), indirekter Beleuchtung;

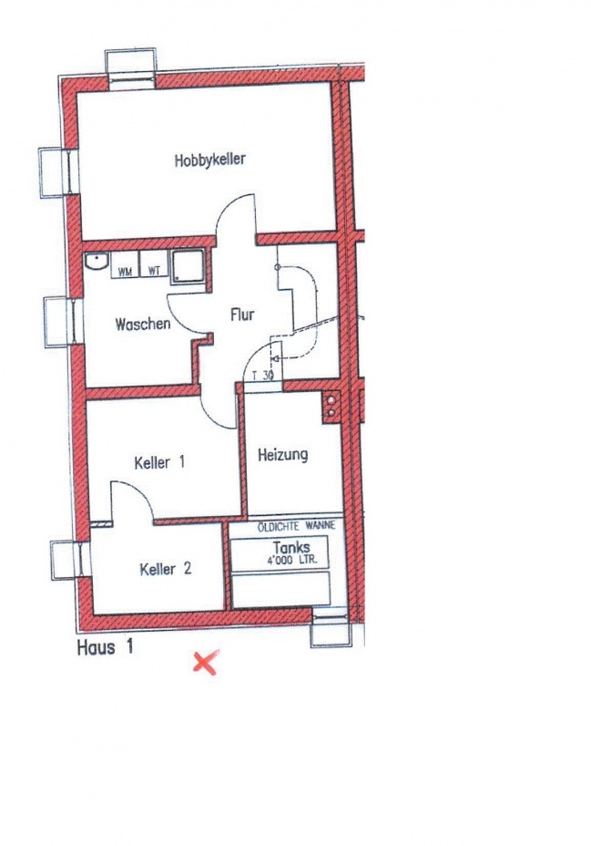
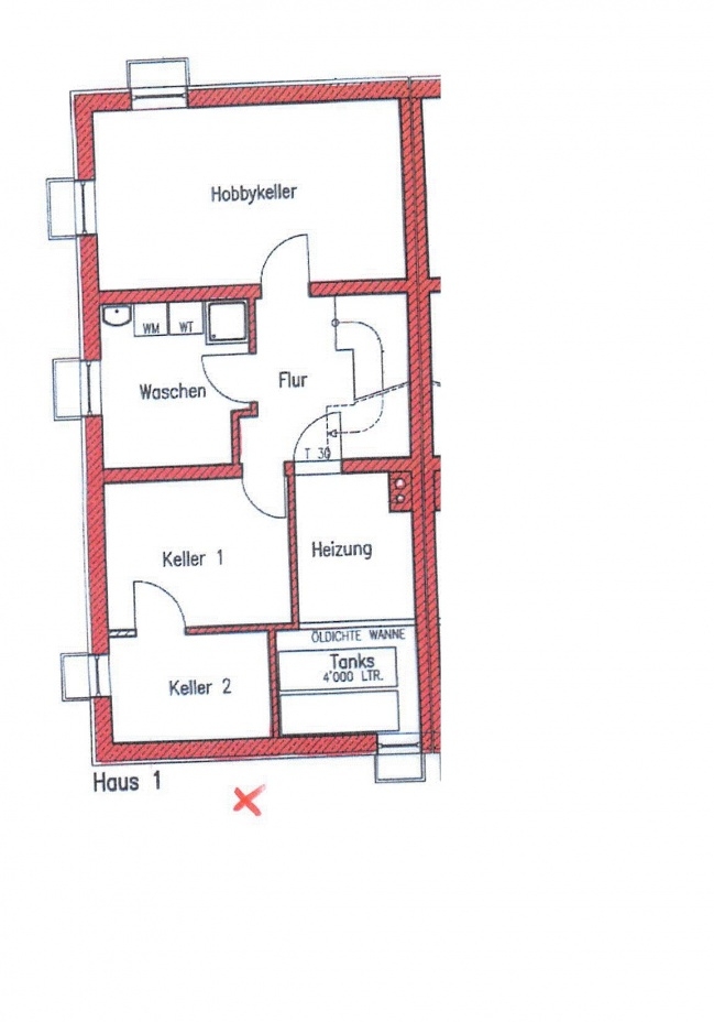
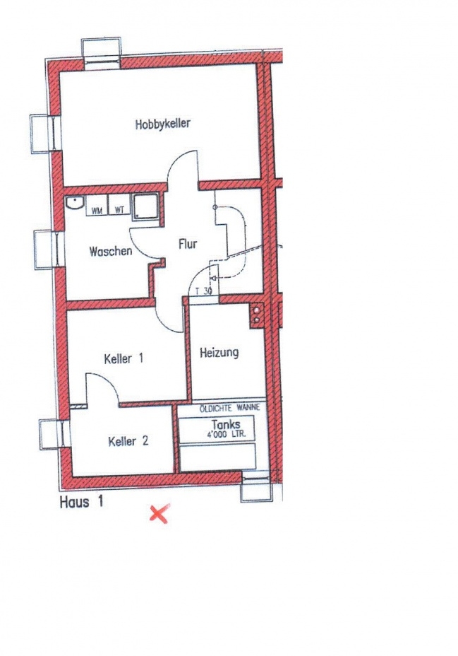
Keller:
Alle Fenster wurden aufwendig hochwasserdicht mit Vorbauscheibe inkl. Lüftungsöffnungen gemacht. Heizungskeller; Hobbyraum; Stauraum mit Schreiner-Einbau-Möbel; separater Raum; Waschküche;

Garten:
Eingewachsener Garten mit Süd- Ausrichtung, übergroße mit Echtsteinen gepflasterter Terrasse, Zugang in den Garten auch über die Garage möglich, eigener KFZ-Stellplatz vor der Garage;

Energieausweis:

Art: Verbrauchsausweis
Gültig bis: 01.6.2026
Endenergieverbrauch: 93.30 kWh/(m²*a)
Baujahr lt. Energieausweis: 2001
Wesentlicher Energieträger: Öl

Lage:

Dießen am Ammersee Ortsteil St. Alban, 3 Gehminuten bis zum wohl schönsteten Strand "Strandbad St. Alban", Lauf nähe Gymnasium; sehr ruhig gelegen in einer Sackgasse und Privatstraße (WEG). Es handelt sich um eine "West"- Doppelhaushälfte, also sehr hell und viel Sonne!

Ausstattung:

Sehr gepflegte, moderne Doppelhaushälfte im Toskanastiel;
Das Haus wurde bis jetzt "nur" als Ferienhaus der Eigentümer genutzt (kaum Gebrauchsspuren)

  • Einbauküche mit Elektrogeräten
  • Wohn- Ess- und Schlafzimmer mit teurem, echten Eichenparkett
  • Heizkörperverkleidungen vom Schreiner gefertigt
  • Schöner, eingewachsener Garten
  • Hochwassergeschützt (wichtig für Elementarversicherung)
  • Ammersee in Geh- Nähe (3 min.) Strandbad St. Alban
  • ruhig gelegen, da kein Durchgangsverkehr (Sackgasse)
  • Schulnähe (Gymnasium)
Sonstiges:

Herr Gregor Grimm:
Grimmobilien

Franz-Beck-Straße 21
86551 Aichach

Tel.: 08251-888282